Nyitólap Hirdetésfeladás Kapcsolat
Eladó Téglalakás, Szolnok, Belváros
#697200427
85.26 millió Ft
Alapterület 98 m2,  1 415 m2-es telken
Szobák száma 3 szoba
Építési mód Tégla
Állapot Új építésű
Emelet Tetőtér

További paraméterek

Részletes leírás

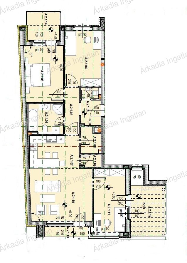
Új építésű 3 szobás tetőtéri lakás Liftes házban Eladó!

Az építésitelek 1415 m2, melyen “A” épület 10 lakás és “B” épület 9 lakás kerül kialakításra.

 

A lakások méretei:

 

A épület:

Fsz.:       41 m2, 53 m2

1em.:     88 m2 + 20 m2 terasz, 63 m2 + 6 m2 terasz, 78 m2 + 12 m2 terasz

2em.:     88 m2 + 20 m2 terasz, 63 m2 + 6 m2 terasz, 78 m2 + 12 m2 terasz

Tetőtér: 70 m2 + 12 m2 terasz, 89 m2 + 12m2terasz

 

 

B épület:

Fsz.:      49 m2, 63 m2

1em.:     63 m2 +   7 m2  terasz, 49 m2 + 5 m2 terasz,  66 m2 +   7 m2 terasz

2em.:     88 m2 + 20 m2  terasz, 63 m2 + 6 m2  terasz,  77 m2 + 12 m2 terasz

Tetőtér: 93 m2 + 22 m2 terasz

 

A lakások 30% előleg befizetésével foglalhatók le.

 

Parkolás: minden lakáshoz 1db fedett, vagy szabadtéri szilárdburkolatú parkolóhely kialakítása tervezett.

 

Szerkezeti kialakítás:

 

Alapozás: talpgerendaráccsal, tartószerkezeti műszaki leírás szerint.

Lábazat: A gerendarács tetején fagyálló lábazat készül 2 sorzsalukőből, tartó szerkezeti műszaki leírás szerint.

Falszerkezet: Homlokzati falak: PTH30N + F kerámia falazóblokk, 15 cm. polisztirol, illetve a szükséges helyeken ásványiszálas hőszigeteléssel, tűzvédelmi műszakileírás szerint.

Födémszerkezet: helyszínen készített monolit vasbetonfödémszerkezet készül.

Nyílászárók: Homlokzaton hőszigetelőüvegezésű műanyag ajtók és ablakok.

Lakásokon hőszigetelő műanyag bejárati ajtó.

Lakásokban MDF lapos beltéri ajtók, utólagos tokos kivitelben.

Tetőtérben Velux hőszigetelő tetősíkú ablakok.

Földszinti tárolókban fémszerkezetű ajtók.

Burkolatok: Padlóburkolat: kerámialap burkolat, illetve laminált parketta.

Falburkolat: vizes helyiségek oldalfalain csempeburkolat.

Mennyezetburkolat tetőtérben: tűzálló gipszkarton.

Lift: Épületenként egy-egy 630 kg. teherbírású, 8 személyes OTIS személyfelvonó

létesül egyoldali beszállóhely kialakítással, 4 beszállóhellyel, villamoshajtással,

szakági tervek szerint.

 

 

Amennyiben hirdetésem felkeltette érdeklődését várom megtisztelő

hívását.

Kapcsolat

Ossza meg a hirdetést:
FacebookGplusTwitter