Nyitólap Hirdetésfeladás Kapcsolat
Eladó Téglalakás, Szolnok, Déli városrész
#185301322
29.9 millió Ft
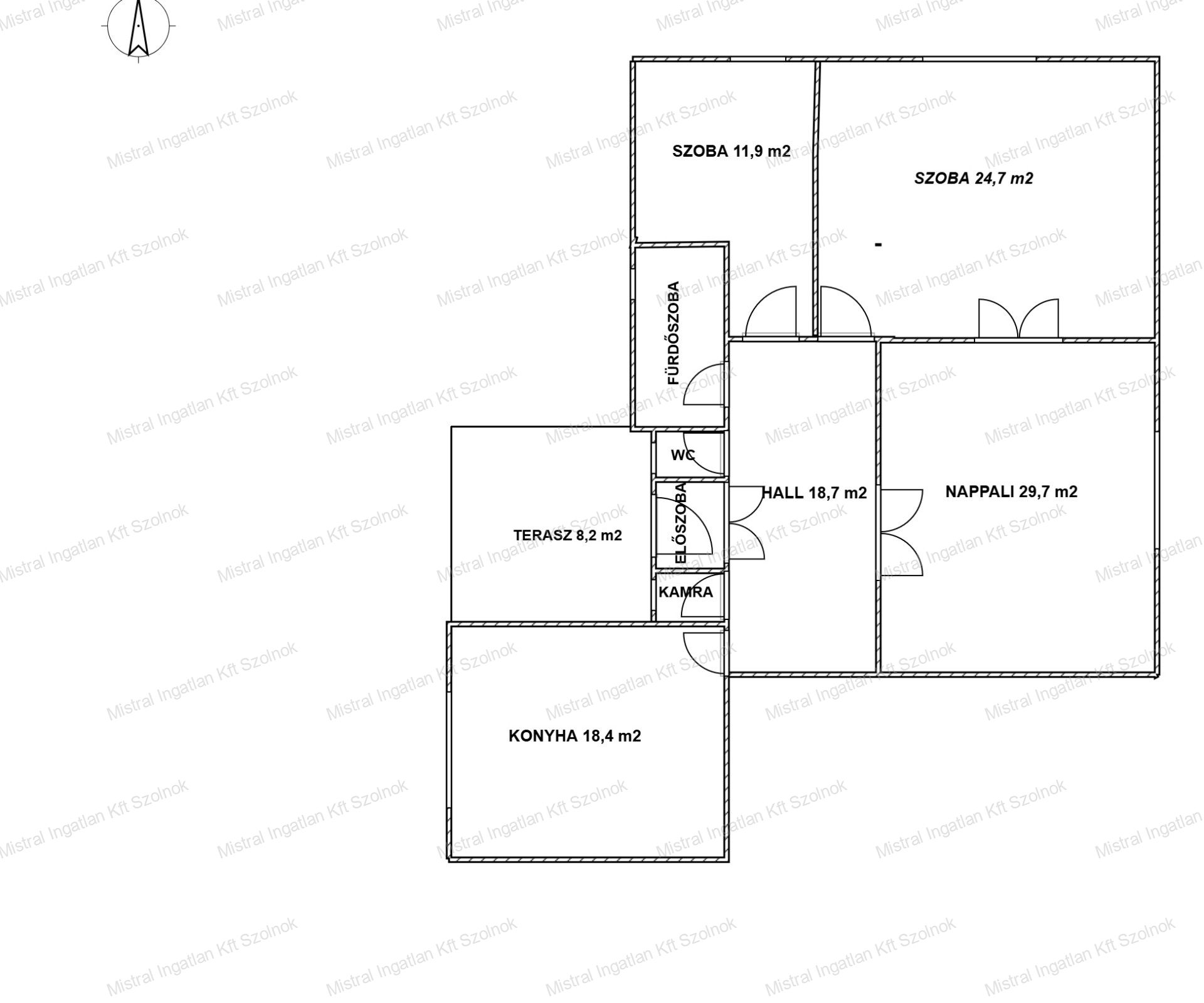
Alapterület 113 m2
Szobák száma 3 szoba
Építési mód Tégla
Állapot Átlagos
Emelet Földszint

További paraméterek

  • Kilátás: Kertre néző
  • Fűtés: Konvektor
  • Szintek száma: 1
  • Komfort: Komfort
  • Akadálymentesítés: Nem akadálymentesített

Részletes leírás

Parkosított , kertkapcsolatos , 3 szobás , napfényes lakás eladó !

Fedezze fel ezt a tágas, 113 négyzetméteres téglalakást Szolnok déli városrészében, a Cukorgyári lakótelep parkosított , zárt udvarában , ahol a városi élet kényelme és a nyugalom találkozik.

Az ingatlan 1912-ben épült, és átlagos állapotának köszönhetően remek lehetőséget biztosít a saját ízlésének megfelelő átalakításra.

A társasház igényes , folyamatos a karbantartás , így az elmúlt években : teljes tetőcsere ; villamos fővezeték és ivóvíz hálózat csere volt .

 

A lakás három jól elosztott szobával rendelkezik, melyek ideálisak családok számára . A lakás kelet-nyugati tájolásának köszönhetően világos és napfényes, a kertre néző ablakok pedig kellemes kilátást biztosítanak.

A fűtés konvektorral megoldott, amely biztosítja a téli hónapokban is a kellemes hőmérsékletet.
Az udvarban parkolási lehetőség biztosított, ami nagy előny a városi környezetben.

Ne hagyja ki ezt a remek lehetőséget, hogy saját otthona legyen egy nyugodt, de mégis központi elhelyezkedésű környezetben!

Az irányár 29 900 000 Ft, mely egy nagyszerű befektetés lehet a jövőjébe.

Kérjük, lépjen kapcsolatba velem a további részletekért és a megtekintés időpontjának egyeztetéséért!

Kun Mariann : 06 70/320-9880

Kapcsolat

Ossza meg a hirdetést:
FacebookGplusTwitter