Nyitólap Hirdetésfeladás Kapcsolat
Eladó Téglalakás, Nyíregyháza
#721100260
119.99 millió Ft
Alapterület 150 m2,  900 m2-es telken
Szobák száma 4 szoba
Építési mód Tégla
Állapot Új építésű
Emelet nincs megadva

További paraméterek

  • Otthon Start 3%-os hitellel
  • Kilátás: Utcára
  • Fűtés: Hőszivattyú
  • Szintek száma: 2
  • Komfort: Összkomfort
  • Energetika: A+++

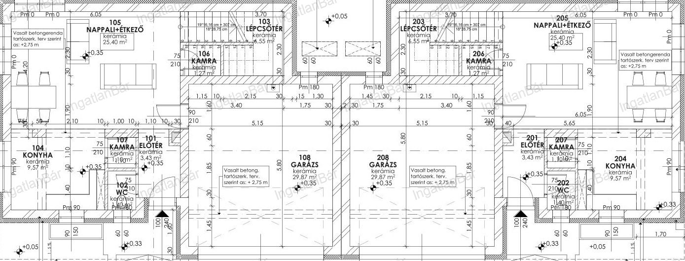
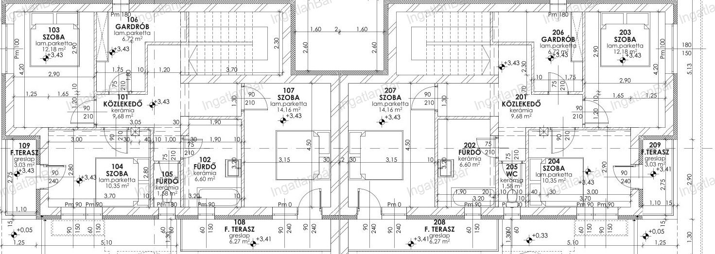
Részletes leírás

Eladó ikerházak Sóstón

Megvételre kínálunk egy gyönyörű téglaépítésű lakást Nyíregyházán, mely 2024-ben készült el. Az ingatlan alapterülete 150 négyzetméter, ami bőven elegendő teret biztosít egy család számára. A lakás három tágas szobával rendelkezik, és a hőszivattyús fűtésnek köszönhetően rendkívül energiatakarékos, így az A+++ energetikai tanúsítvány megszerzése sem meglepő.

A telek mérete 900 négyzetméter, amely lehetőséget kínál különféle szabadtéri tevékenységekre, valamint kellemes pihenőhely kialakítására. A lakás utcai és kertkapcsolatos kilátással rendelkezik mindezt úgy, hogy a garázsban történő parkolás kényelmét is élvezheti.

Az ingatlan irányára 119 990 000 Ft, amely egy kiváló lehetőséget kínál a modern, kényelmes otthon keresők számára. Ne hagyja ki ezt a lehetőséget, jöjjön el, nézze meg, és tapasztalja meg a saját szemével a lakás varázsát!

Kapcsolat

Tóth Emese

Ossza meg a hirdetést:
FacebookGplusTwitter