Nyitólap Hirdetésfeladás Kapcsolat
Eladó Téglalakás, Nyíregyháza, Belváros
#672600862
65.9 millió Ft
Alapterület 90 m2
Szobák száma 3 szoba
Építési mód Tégla
Állapot Felújított
Emelet 3. emelet

További paraméterek

  • Azonnal költözhető
  • CSOK igényelhető
  • Eladó_Prémium_lakás
  • Téglaépítésű lakás
  • Kilátás: Udvari
  • Fűtés: Kondenzációs kazán
  • Bútorozottság: Részben bútorozott
  • Szintek száma: 4
  • Komfort: Összkomfort

Részletes leírás

Eladó modern lakás az Egyetem közelében – Nyíregyháza egyik legjobb ajánlata!

Kiváló lehetőség mindazoknak, akik tágas, azonnal költözhető és alacsony rezsijű otthont keresnek!
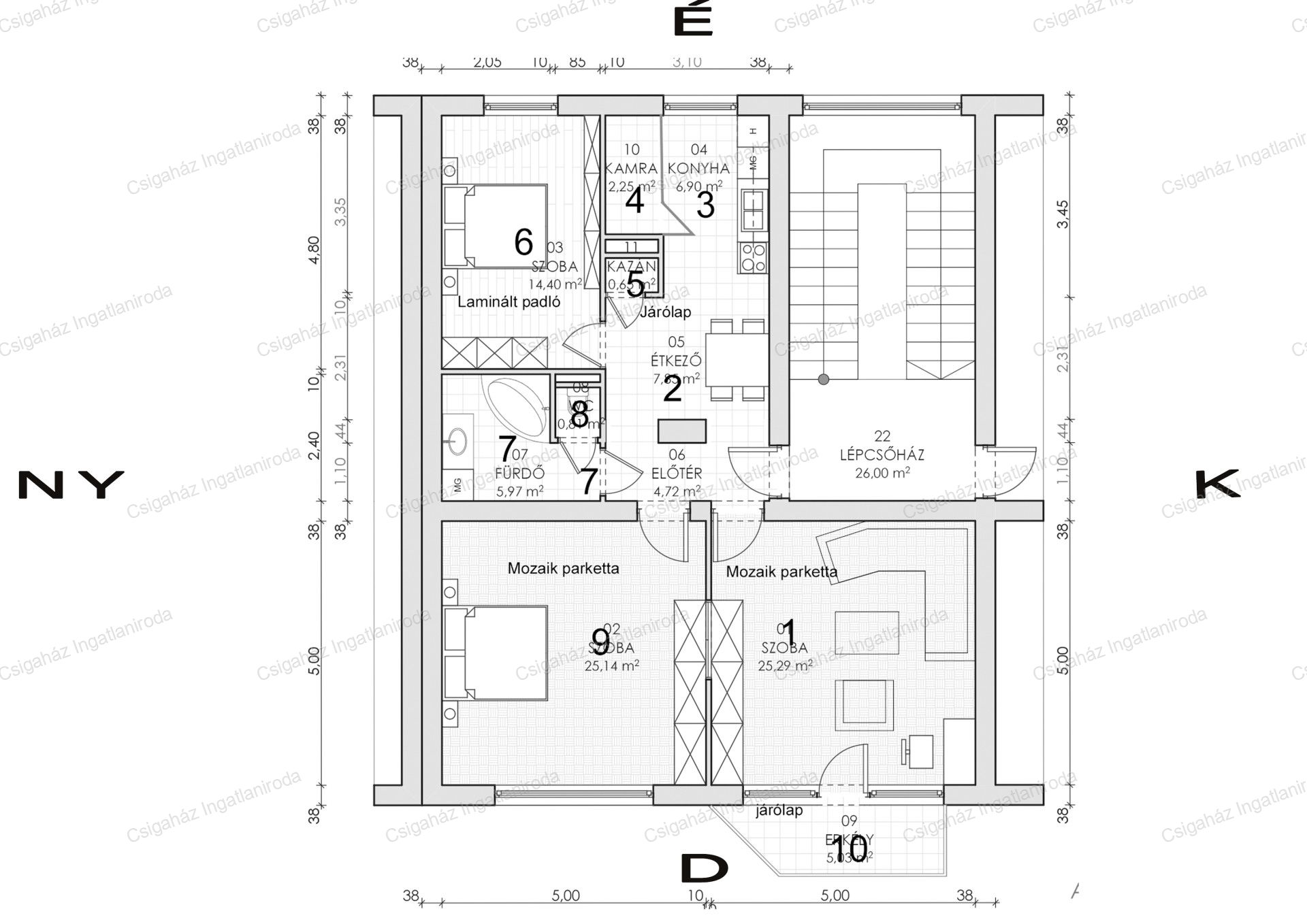
Nyíregyháza, az Egyetem közvetlen közelében, szigetelt téglaépítésű társasház 3. emeletén eladó egy 90 m²-es, teljes körűen felújított, modern kialakítású lakás a földszinten található garázzsal.
A lakás főbb jellemzői:
    •    Amerikai konyhás nappali + 2 hálószoba + gardrób + fürdőszoba + külön WC
    •    É-D-i tájolás, egész nap világos, napfényes otthon
    •    Udvarra néző erkély – csendes, nyugodt környezet
    •    Beépített, gépesített konyha (egyedi tervezés, prémium gépekkel, 2022-ben cserélve)
    •    Energiatakarékos gáz-cirkó fűtés, radiátorokkal + 2 inverteres klíma fűtésre és hűtésre
    •    Kedvező fenntartási költségek – minimális rezsi!
    •    Parkolás a társasház földszintjén található saját garázsban (kb. 15 m²)
Felújítás tartalma (2018–2022):
✔ Prémium burkolatok és belső nyílászárók
✔ Radiátorok teljes cseréje, csövek falba rejtve
✔ 3 rétegű hőszigetelt nyílászárók, redőnnyel és szúnyoghálóval
✔ Optikai kábel előkészítve
✔ Új, modern konyhabútor és prémium gépek
Miért ideális választás?
    •    Azonnal költözhető, gondosan karbantartott otthon
    •    Ideális családoknak, fiatal pároknak vagy befektetőknek (az Egyetem közelsége miatt kiadásra is tökéletes)
    •    Modern, igényes kivitelezés, mely hosszú távon is értékálló

    •    A garázs külön megvásárolható

Eladási feltételek:

Lakás eladási ára :  65.900.000,-Ft

Garázs eladási ára:   7.500.000,-Ft

A lakás csak a garázzsal együtt eladó!

Kapcsolat

Péter Ferenc

Irodavezető

+36 30 435-2135
ferenc.peter1969@gmail.com
Csigaház Ingatlaniroda
csigahazingatlan.hu
Ossza meg a hirdetést:
FacebookGplusTwitter