Nyitólap Hirdetésfeladás Kapcsolat
Eladó Téglalakás, Miskolc, Belváros, Munkácsy Mihály utca
#698900690
69.9 millió Ft
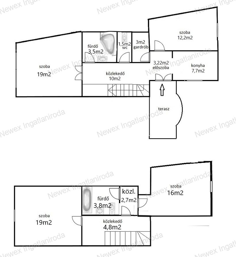
Alapterület 110 m2
Szobák száma 4 szoba
Építési mód Tégla
Állapot
Emelet 2. emelet

További paraméterek

  • Azonnal költözhető
  • CSOK igényelhető
  • CSOK+
  • Jó közlekedéssel
  • Otthon Start 3%-os hitellel
  • Kilátás: Városra néző
  • Fűtés: Gázkazán
  • Bútorozottság: Részben bútorozott
  • Komfort: Dupla komfort

Részletes leírás

Belvárosi kényelem, nyugodt környezetben – NAGYON RITKA LEHETŐSÉG Miskolc szívében!

 

Eladásra kínálunk egy bruttó 110 m²-es, klimatizált, gáz-központi fűtéses, téglaépítésű, szigetelt lakást a közkedvelt Tulipán tömbben.

 

Ez a KÜLÖNLEGES ELOSZTÁSÚ ingatlan 4 szobával, 2 fürdőszobával, modern konyhabútorral, SAJÁT ZÁRT PARKOLÓVAL ÉS PINCÉVEL rendelkezik. A lakás csendes elhelyezkedése mellett minden szolgáltatás karnyújtásnyira elérhető – üzletek, közlekedés, iskolák, éttermek pár perc sétára.

Ez a tágas, kiváló állapotú otthon családoknak és befektetőknek egyaránt ideális választás, ráadásul OTTHON START 3%-OS és piaci hitelképes, plussz CSOK-ra is alkalmas (3+ gyermek esetén).

 

Ha belvárosi, mégis nyugodt életre vágysz, ne hagyd ki ezt a lehetőséget – hívj, és megmutatom Neked ezt a GYÖNGYSZEMET!

Kapcsolat

Palocsányi Tamás

Ossza meg a hirdetést:
FacebookGplusTwitter