Nyitólap Hirdetésfeladás Kapcsolat
Eladó Téglalakás, Kaposvár
#6706977
56.56 millió Ft
Alapterület 64 m2
Szobák száma + 2 félszoba
Építési mód Tégla
Állapot Új építésű
Emelet Földszint

További paraméterek

  • Kilátás: Parkra néző
  • Fűtés: Hőszivattyú
  • Komfort: Összkomfort
  • Energetika: A+
  • Internet: Optikai

Részletes leírás

ELADVA !

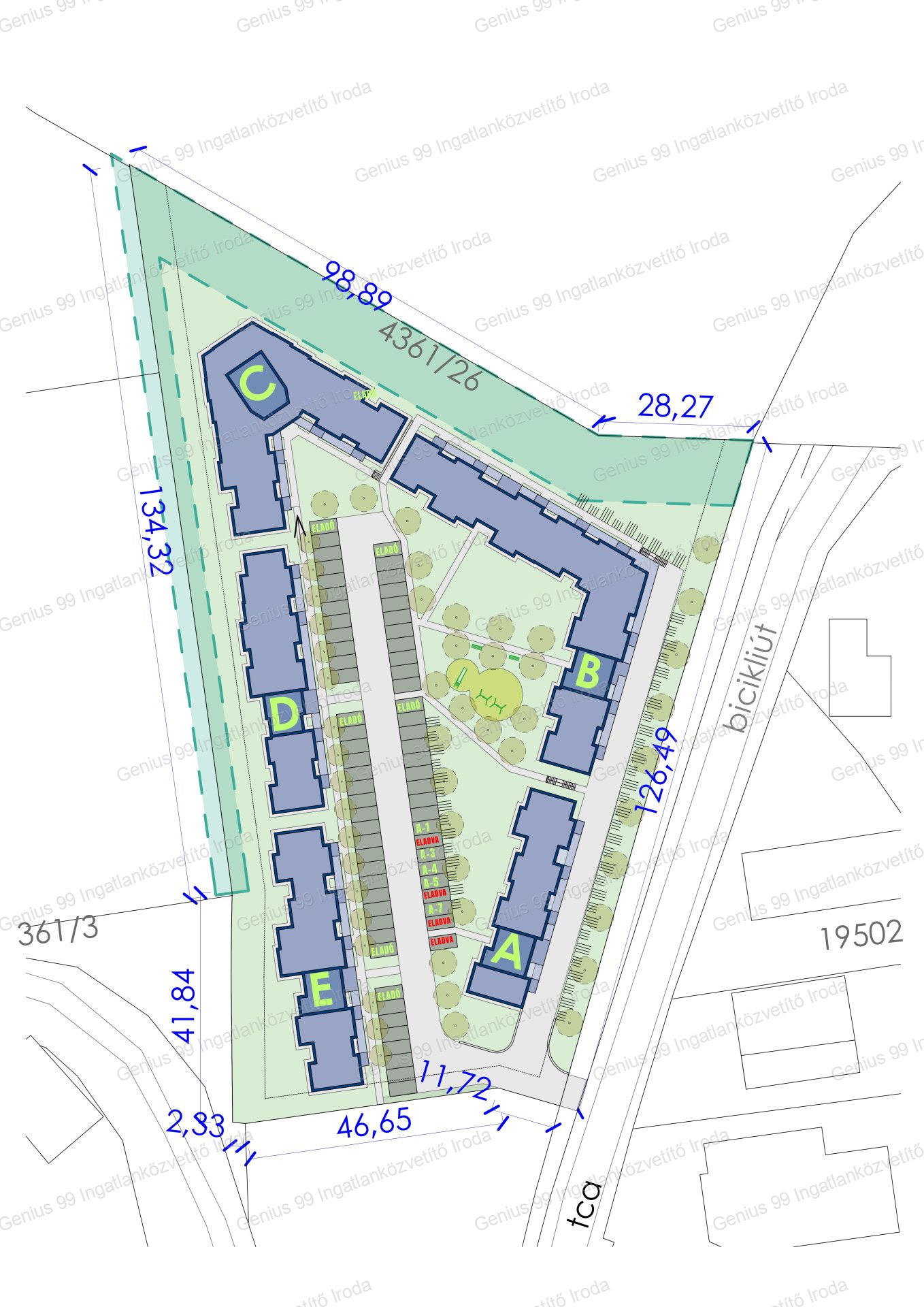
Kaposvár exkluzív lakóparkjában újépítésű lakás eladó !

Most lehetősége nyílik arra, hogy elsőként költözzön be a város legmodernebb és legbiztonságosabb zárt lakóparkjába, a Zaranyi lakóparkba, amely Kaposvár központjához közel, mégis nyugodt, zöldövezeti környezetben helyezkedik el.

A kínált ingatlan az A épület 2. számú lakása, amely a földszinten található és 64,84 m²-es, amelyben 1,5 szoba, amerikai konyhás nappali, fürdőszoba és külön WC, illetve egy hatalmas méretű erkély is található, így ideális választás pároknak, családoknak vagy akár befektetők részére is. A modern otthonban hőszigetelt 3 rétegű üvegezéssel ellátott műanyag nyílászárók, elektromos redőny előkészítés, valamint prémium minőségű hideg- és melegburkolatok kerülnek beépítésre, amelyek egyedi igény szerint, a megadott katalógusból választhatók – így teljes mértékben saját ízlésére formálhatja új otthonát.

A lakás tervezése a maximális komfortot helyezte előtérbe: a legmodernebb levegő-víz hőszivattyús rendszer gondoskodik a padló és mennyezet fűtés-hűtésről. Minden lakás külön mérőórákkal ellátott, a maximális komfortért és a központi és helyiségenkénti szabályozás miatt a rezsiköltségek kedvezően alakulnak.

A biztonságos parkolást egy saját névre dedikált felszíni parkolóhely garantálja, amely benne van a lakás vételárában és mindig az Ön rendelkezésére áll, de igény esetén a lakóparkban opcionálisan garázs és saját tároló is vásárolható. A lakópark elektromos kapuval zárt terület, amely kizárólag a lakók számára elérhető, így biztosítva a nyugalmat és a biztonságot. A kisgyermekes családokra figyelemmel a lakópark belső területén egy játszótér is kialakításra kerül

Ha Ön is egy új és modern, saját igényeire szabható új építésű lakásra vágyik Kaposváron, akkor a Zaranyi Lakóparkban megtalálja új otthonát. Ne hagyja ki ezt a lehetőséget!

AMENNYIBEN TOVÁBBI KÉRDÉSEI LENNÉNEK AZ INGATLANNAL KAPCSOLATBAN VAGY ESETLEG SZEMÉLYESEN IS MEGTEKINTENÉ KÉREM KERESSEN BIZALOMMAL AZ ALÁBBI ELÉRHETŐSÉGEIMEN.

Ár.: Bruttó 56.559.000.- Ft

Érd: +36302562334

https://genius99.hu/ingatlanok/6706977/

Azonosító: A-2

A weboldalon szereplő információk (képek, szövegek ... stb.) teljes mértékben a szerző jogi tulajdonát képezik.

A weboldalon szereplő információkat, adatokat másolni, felhasználni csak a szerző előzetes engedélyével lehetséges.

A tévedés, árváltoztatás és elírás jogát előzetes tájékoztatás nélkül fenntartjuk!

Kapcsolat

Oláh Miklós

Ügyvezető

Ossza meg a hirdetést:
FacebookGplusTwitter