| 
86.9 millió Ft                                 | |
| Alapterület | 62 m2, 80 m2-es telken | 
| Szobák száma | nincs megadva | 
| Építési mód | Tégla | 
| Állapot | Kiváló | 
| Emelet | nincs megadva | 
További paraméterek
 CSOK igényelhető CSOK igényelhető
 Jó közlekedéssel Jó közlekedéssel
 Kertkapcsolatos Kertkapcsolatos
 Klímás Klímás
 Otthon Start 3%-os hitellel Otthon Start 3%-os hitellel
 Zöldövezeti Zöldövezeti
- Kilátás: Udvari
- Fűtés: Gázkazán
- Komfort: Összkomfort
Részletes leírás
Eladó 62 m2 kertkapcsolatos földszinti lakás Győr-Ménfőcsanak
Eladó kertkapcsolatos földszinti lakás Győr-Ménfőcsanak győrhöz közeli részén
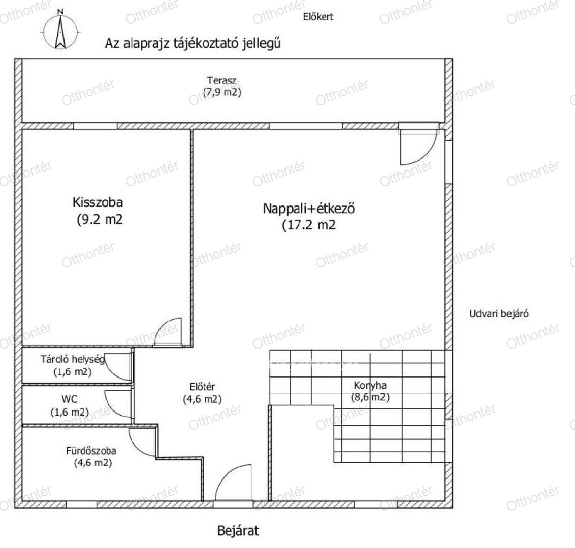
Győr-Ménfőcsanak egyik legkedveltebb, győrhöz legközelebb eső részén, csendes, újépítésű környezetben kínálok eladásra egy 2019-ben épült, igényes, földszinti, kertkapcsolatos lakást. A lakás összesített alapterülete 62 m² (ebből 56 m² a lakótér és 12 m² a fedett terasz. A teraszról egy 80 m²-es, elkerített, saját kert nyílik, ahol fűthető medence biztosítja a tökéletes kikapcsolódást.
A lakás egy kétszintes, mindössze 12 lakásos társasház földszintjén helyezkedik el. Az épület modern, jó állapotú, karbantartott és rendezett lakóközösségű.
A környék kimondottan kellemes és biztonságos, a városközpont autóval néhány perc alatt elérhető, de a buszközlekedés is kiváló.
A jelenlegi elrendezés nappali + 1 hálószoba, azonban eredetileg két szobás + nappalis kialakítással épült, így igény szerint könnyedén visszaalakítható. A helyiségek világosak, tágasak, és minden részletében látszik a gondos kivitelezés.
A lakás fűtése társasházi központi gázkazánról működik, egyedi hőmennyiségmérővel és termosztáttal ellátva, így a fogyasztás pontosan követhető és szabályozható.
A rezsi kedvező, a lakás hőmegtartása kiváló.
Főbb jellemzők
Ár: 86 900 000 Ft
Építés éve: 2019
Teljes terület: 62 m²
(ebből: 56 m² lakótér + 12 m² fedett terasz, melynek fele számít bele)
Kert: 80 m², saját, elkerített
Épület: kétszintes, 12 lakásos társasház
Szobák: nappali + 1 hálószoba (visszaalakítható 2 szobás + nappalissá)
Fűtés: központi gázkazán, egyedi mérőóra és termosztát
Állapot: újszerű
Extra: , fűthető medence a teraszon
Előnyei röviden
Győrhöz közeli csanaki elhelyezkedés – gyorsan elérhető a város
Csendes, újépítésű övezet, rendezett lakóközösség
2019-es építés, modern technikai megoldások
Saját kert és fedett terasz, épített medencével
Gazdaságos, egyedileg szabályozható fűtés
Világos, tágas terek, rugalmas alaprajz
Ez a lakás tökéletes választás azoknak, akik szeretnének Győr közelében, de zöldövezeti környezetben élni, és fontos számukra a modern kényelem, a saját kert és a fűthető medence nyújtotta extra életminőség.
Kiváló döntés fiatal pároknak, kisgyermekes családoknak, vagy akár idősebbeknek, akik földszinti, nyugodt, minőségi otthont keresnek.
A beépített bútorok a vételár részét képezik, a többi kiegészítő , bútorok, medence megállapodás része.

 
                                

