Nyitólap Hirdetésfeladás Kapcsolat
Eladó Téglalakás, Győr
#725400065
52 millió Ft
Alapterület 53 m2
Szobák száma nincs megadva
Építési mód Panel
Állapot
Emelet nincs megadva

További paraméterek

  • Azonnal költözhető
  • CSOK igényelhető
  • Jó közlekedéssel
  • Otthon Start 3%-os hitellel
  • Zöldövezeti
  • Szintek száma: 9

Részletes leírás

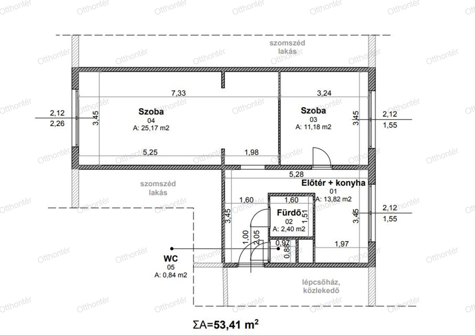
Azonnal költözhető, felújított panellakás! 53 m2, 2 szoba 52 millió

Azonnal költözhető, felújított panellakás Győr-Adyvárosban!

 

Győr kedvelt részén, az Adyvárosban, a Kodály Zoltán úton kínáljuk eladásra ezt a 9. emeleti, 53 m²-es, 2 szoba + hall elosztású lakást.

 Felújítások és állapot:

A villanyvezetékek cseréje megtörtént,

Újszerű, modern konyhabútor,

Laminált padló a hálóban, parketta a nappaliban,

Műanyag nyílászárók redőnnyel,

Új biztonsági bejárati ajtó.

Ház és fűtés:

A ház kívülről szigetelt,

Fűtés: távhő egyedi mérőórával,

Közös költség mindössze 8.000 Ft.

 Környék és elhelyezkedés:

A lakás elhelyezkedése ideális! A közelben megtalálható iskola, óvoda, orvosi rendelő, boltok és buszmegálló – minden, amire a mindennapokban szüksége lehet.

 Bútorozottan eladó!

A lakás berendezése a vételár részét képezi, így azonnal költözhet – nincs további teendő!

Keressen akár hétvégén is.

 

 

Kapcsolat

Varga Norbert

+36 20 771-1077
norbi.otthonter@gmail.com
Ossza meg a hirdetést:
FacebookGplusTwitter