Nyitólap Hirdetésfeladás Kapcsolat
Eladó Téglalakás, Győr, Szabadhegy
#713800124
38.99 millió Ft
Alapterület 41 m2,  58 m2-es telken
Szobák száma nincs megadva
Építési mód Tégla
Állapot Új építésű
Emelet Földszint

További paraméterek

  • Jó közlekedéssel
  • Zöldövezeti
  • Kilátás: Udvari
  • Fűtés: Hőszivattyú
  • Komfort: Összkomfort
  • Energetika: A+

Részletes leírás

Győr-Szabadhegy- Eladó új építésű ingatlan

Győr Szabadhegyen új építésű társasházban lakásként is használható, és kiadható irodákat kínálok eladásra!

 

SUN Garden - PRÉMIUM társasház 2. ütem
Győr-Szabadhegy - Tatai út

 

Kiváló elhelyezkedés 

Tatai út és a körforgalom átépítésre került 2022-ben, így   külön szervízúton lehet megközelíteni az ingatlant

A Győri Ipari park is pár percre 


Prémium hőszivattyús padló / mennyezet hűtéssel / fűtéssel és hőszivattyús melegvíz előállítással rendelkező irodák, akár kertkapcsolattal

 

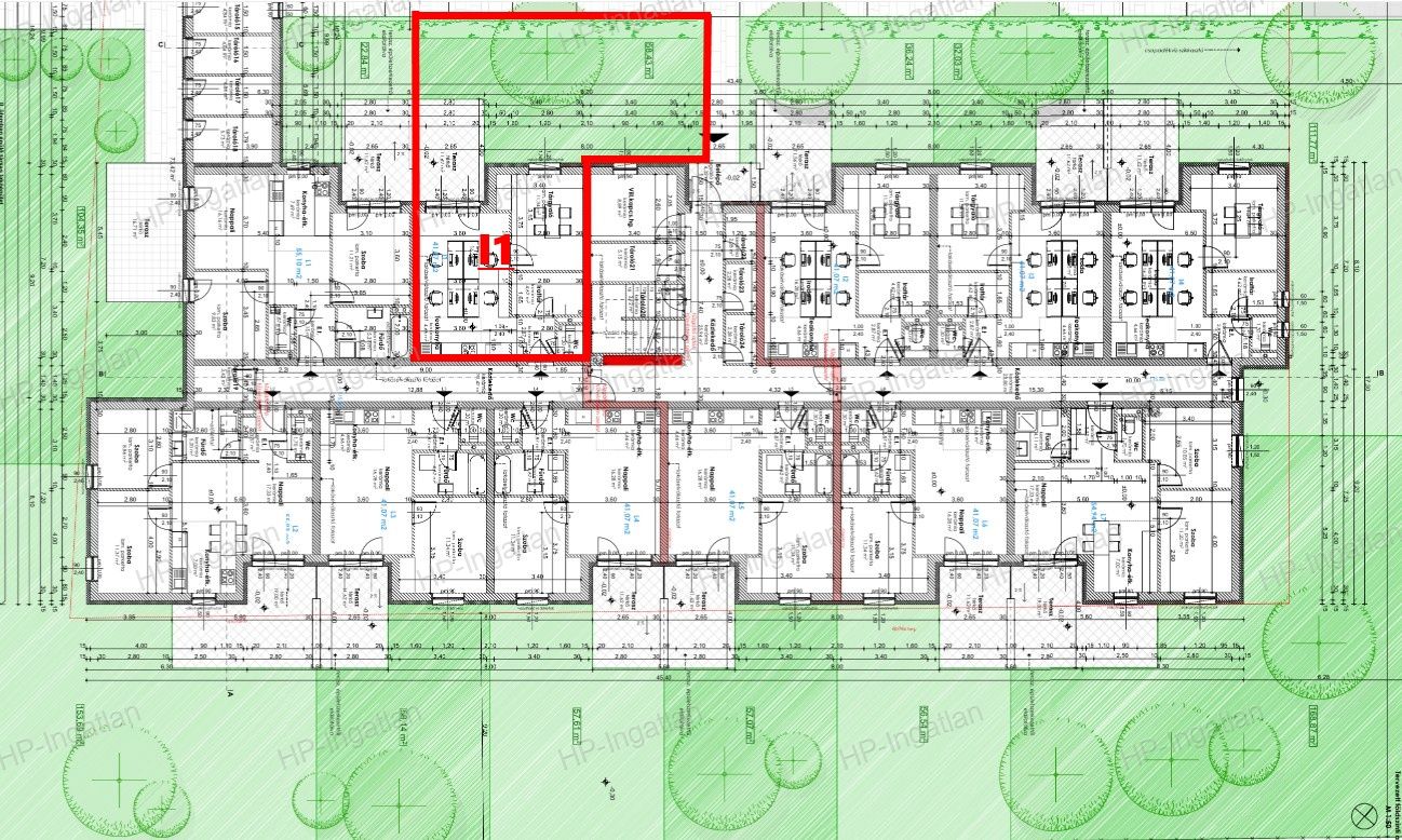
Az alapító okirat szerint lakócélra is használható ingatlan elosztása:

Fsz.I1sz. 41nm + 11,62nm terasz  58,63nm kertkapcsolat

tároló,irattár,teakonyha, előtér ,wc

 

Műszaki tartalom:

 A ház 30-as téglából épül

15 cm szigeteléssel,

 ablakai 3 rétegű műanyagok.

 Hőszivattyús padlófűtés és mennyezeti hűtés kerül kiépítésre, melynek köszönhetően nincs szükség klíma   beépítésére.

 

Vételár: 38.990.000Ft+Áfa /27%/

 

Céges vásárlás esetén vállkozói díj fordított ÁFÁ-s ,

telekhányad ÁFA visszaigányelhető 

 

Az ingatlan emelt szintű fűtéskész állapotban kerül átadásra

Azonnal birtokba vehető

 

 

 

 

 

Kapcsolat

Hannichné Szénhegyi Gertrúd

Irodavezető

Ossza meg a hirdetést:
FacebookGplusTwitter