|
49.78 millió Ft
|
|
| Alapterület | 47 m2 |
| Szobák száma | 2 szoba |
| Építési mód | Tégla |
| Állapot | Új építésű |
| Emelet | 2. emelet |
További paraméterek
Megújuló energiaforrás
Otthon Start 3%-os hitellel
Remek ajánlat!
Új építésű!- Fűtés: Hőszivattyú
Részletes leírás
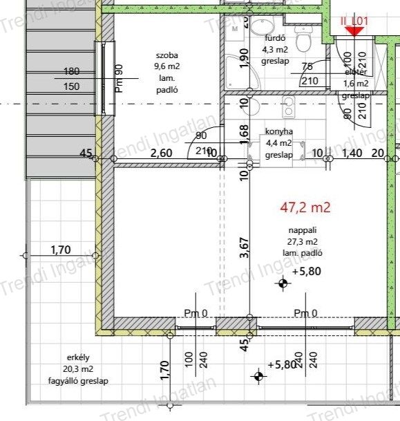
Nappali + 1 szobás lakás eladó
Győr-Belvárosától pár perces autóútra, Szitásdomb új kialakítású részén épülő 35 lakásos társasházban különböző alapterületű lakások eladók.
A meghirdetett 2. emeleten található 47,20 nm-es lakásban amerikai konyhás nappali, szoba, fürdőszoba, külön WC, előtér kerül kialakításra. Nappaliból tágas 20,30 nm-es erkély nyílik.
A lakás fűtéskész ára: 49.779.800 Ft. Kulcsrakész befejezés kérhető.
Gépkocsibeállló ára: 1.900.000 Ft
Garázs ára: 12.000.000 Ft-tól
Lehetőség van tároló vásárlására is, ára: 1.508.000 Ft-tól
Várható átadás: 2027 ősz
Magas műszaki tartalommal épülő társasház 30 cm-es falazóelemből, 15 cm-es homlokzati szigeteléssel épül. A nyílászárók 5 légkamrás profilrendszerű, 3 rétegű üvegezéssel rendelkeznek. A rejtett alumínium elektromos redőny előkészítését és a redőny dobok beépítését a vételár tartalmazza. Az épület fűtését és melegvíz-ellátását hőszivattyú biztosítja. Minden lakás 1 db klíma előkészítéssel rendelkezik. Az épület tetőszerkezetén napelemes rendszer kerül kialakításra, ami a társasház működésének költségeit fogja csökkenteni.
Szitásdomb új kialakítású részén épülő társasházban különböző alapterületű lakások kerülnek kialakításra, így minden kedves érdeklődő megtalálhatja álmai otthonát. A földszinti lakások kertkapcsolattal és terasszal, az emeleti lakások erkéllyel rendelkeznek. A társasház zárt udvarán közös nyitott biciklitároló és felszíni parkolók kerülnek kialakításra.
Bővebb információkért forduljon hozzám bizalommal.
Hétköznap és hétvégén is várom hívását!
Díjmentes, bankfüggetlen hitelügyintézéssel állunk rendelkezésére.
A hirdetésben feltüntetett képek illusztrációk.

