Nyitólap Hirdetésfeladás Kapcsolat
Eladó Téglalakás, Debrecen, Belváros
#721100207
99.75 millió Ft
Alapterület 68 m2
Szobák száma 2 szoba
Építési mód Tégla
Állapot Új építésű
Emelet 2. emelet

További paraméterek

  • CSOK igényelhető
  • Jó közlekedéssel
  • Otthon Start 3%-os hitellel
  • Fűtés: Padlófűtés
  • Szintek száma: 1
  • Komfort: Összkomfort

Részletes leírás

Debrecen belvárosi új építésű társasházi lakás!

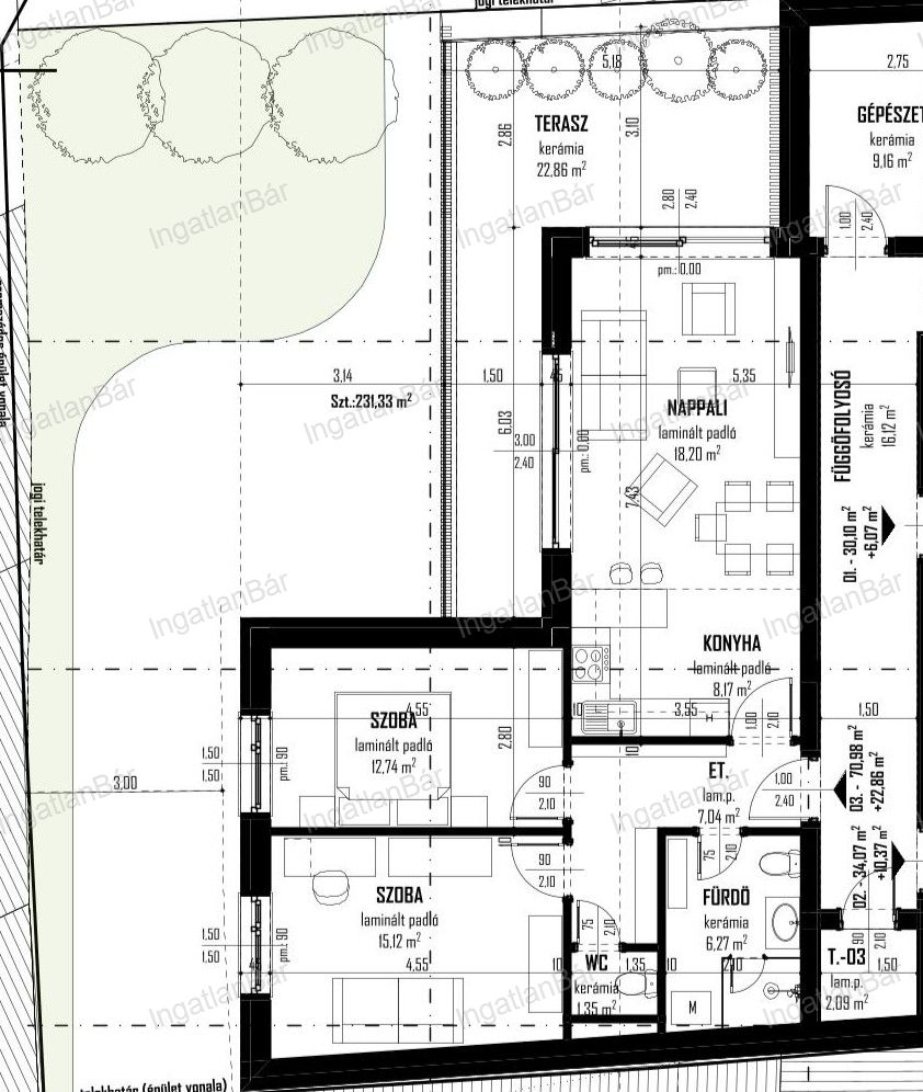
Eladó Debrecen belvárosában egy új építésű tégla lakás, amely a modern életstílus igényeit maximálisan kielégíti. Az ingatlan alapterülete 68 négyzetméter (54m2+28 m2 terasz!!), így elegendő teret biztosít a kényelmes mindennapokhoz.

Várható átadás: 2026. év vége

A lakás három tágas szobával rendelkezik, amelyek világos, barátságos atmoszférát teremtenek.
A padlófűtés és a kondenzációs kazán együttesen garantálja a kellemes hőmérsékletet az év minden szakában, míg a saját split klíma a nyári hónapok hűsítője lesz. Az összkomfortos lakás minden szükséges kényelmet biztosít, így valóban otthon érezheti magát benne.
A lakás keleti tájolású, 28 m²-es terasz öleli körül a nappalit és a szobát, tökéletes hely a pihenésre, reggeli kávézásra vagy baráti összejövetelekre, a naplemente élvezetére.

Gépkocsi tárolására garázsok és udvari beállók vásárolhatók.

Az irányár 99 750 000 Ft, amely egy kivételes lehetőség a belvárosi ingatlanpiacon.

Ne hagyja ki ezt a remek lehetőséget, és lépjen kapcsolatba velem!

Balla Anett 

Ingatlan&Bankbár

Kapcsolat

Balla Anett

Irodavezető

Ossza meg a hirdetést:
FacebookGplusTwitter