Nyitólap Hirdetésfeladás Kapcsolat
Eladó Téglalakás, Csorna
#196400791
41.1 millió Ft
Alapterület 43 m2
Szobák száma 2 szoba
Építési mód Tégla
Állapot Új építésű
Emelet 1. emelet

További paraméterek

  • Igényes
  • Megújuló energiaforrás
  • Otthon Start 3%-os hitellel
  • Remek ajánlat!
  • Fűtés: Hőszivattyú
  • Komfort: Összkomfort

Részletes leírás

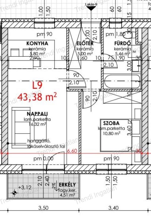
Nappali + 1 szobás erkélyes lakás

Csorna központi részén épülő 17 lakásos társasházban új építésű lakások eladók.

A meghirdetett 1. emeleten található 43,38 nm-es ingatlanban amerikai konyhás nappali, szoba, fürdőszoba, előtér kerül kialakításra. A nappaliból 4,51 nm-es erkély nyílik.

A lakás fűtéskész ára: 41.100.000 Ft. Kulcsrakész befejezés kérhető.
A lakáshoz 1 db gépkocsibeálló tartozik.

A minőségi anyagokból épülő tárasház 30 cm-es falazóelemből, 15 cm-es homlokzati hőszigeteléssel épül. A 3 rétegű műanyag nyílászárók kívül fehér színűek. A társasház fűtését hőszivattyú biztosítja, lakásonként egyedi hőmennyiségmérővel, hőleadás padlófűtéssel. A társasház udvarán térkövezett gépkocsibeállók kerülnek kialakításra.

Várható fűtéskész átadás: 2026 ősz

Bővebb információkért forduljon hozzám bizalommal.
Hétköznap és hétvégén is várom hívását!

Díjmentes, bankfüggetlen hitelügyintézéssel állunk rendelkezésére.

A hirdetésben feltüntetett képek illusztrációk.

Kapcsolat

Neizer Éva

Ingatlanértékesítő

Ossza meg a hirdetést:
FacebookGplusTwitter