Nyitólap Hirdetésfeladás Kapcsolat
Eladó Téglalakás, Csorna
#196400788
54.9 millió Ft
Alapterület 69 m2
Szobák száma 3 szoba
Építési mód Tégla
Állapot Új építésű, azonnal költözhető
Emelet 1. emelet

További paraméterek

  • Azonnal költözhető
  • Kulcsrakész!
  • Remek ajánlat!
  • Új építésű!
  • Fűtés: Házközponti egyedi méréssel
  • Komfort: Összkomfort

Részletes leírás

Új építésű, kulcsrakész nappali + 2 szobás lakás eladó

Azonnal költözhető erkélyes lakás!

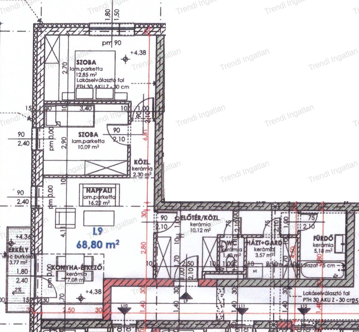
Csorna mellékutcájában új építésű társasház 1. emeletén kulcsrakész, 68,80 nm-es, nappali + 2 szobás lakás eladó.

Az ingatlanban amerikai konyhás nappali, 2 szoba, káddal felszerelt fürdőszoba, külön WC, gardrób, közlekedő, előtér található. A nappaliból 3,77 nm-es erkély nyílik. A konyha gépesített konyabútorral rendelkezik. 

A társasház 30-as falazóelemből, 15 cm-es homlokzati hőszigeteléssel épült. A műanyag nyílásszárók 3 rétegű üvegezéssel rendelkeznek. Fűtésről házközponti gázkazán gondoskodik, padlófűtéssel. Hőséget klíma teszi elviselhetővé.

Az ingatlan kulcsrakész ára: 54.900.000 Ft

A lakáshoz tartozik a társasház zárt udvarán található térkövezett gépkocsibeálló, melynek ára: 1.000.000 Ft.

Bővebb információkért forduljon hozzám bizalommal.
Hétköznap és hétvégén is várom hívását!

Díjmentes, bankfüggetlen hitelügyintézéssel állunk rendelkezésére.

Kapcsolat

Neizer Éva

Ingatlanértékesítő

Ossza meg a hirdetést:
FacebookGplusTwitter