|
122 millió Ft
|
|
| Alapterület | 135 m2, 215 m2-es telken |
| Szobák száma | 5 szoba |
| Építési mód | Tégla |
| Állapot | Kiváló |
| Emelet | nincs megadva |
További paraméterek
- Fűtés: Hőszivattyú
- Internet: Optikai
Részletes leírás
Eladó újépítésű családi ház Pesterzsébeten
ÚJÉPÍTÉSŰ HÁZ A XX. KERÜLETBEN
Pesterzsébet kiemelten frekventált utcájában kínálunk eladásra egy 135 m²-es, garázzsal rendelkező, modern ikerházat 215 m²-es telekkel.
•Rendkívül alacsony áron
•Szinte 0 rezsivel
•Kulcsrakész az ügyfél ízlése szerint
•Nagyszerű elhelyezkedés
•135m2 alapterület
•215m2 telek
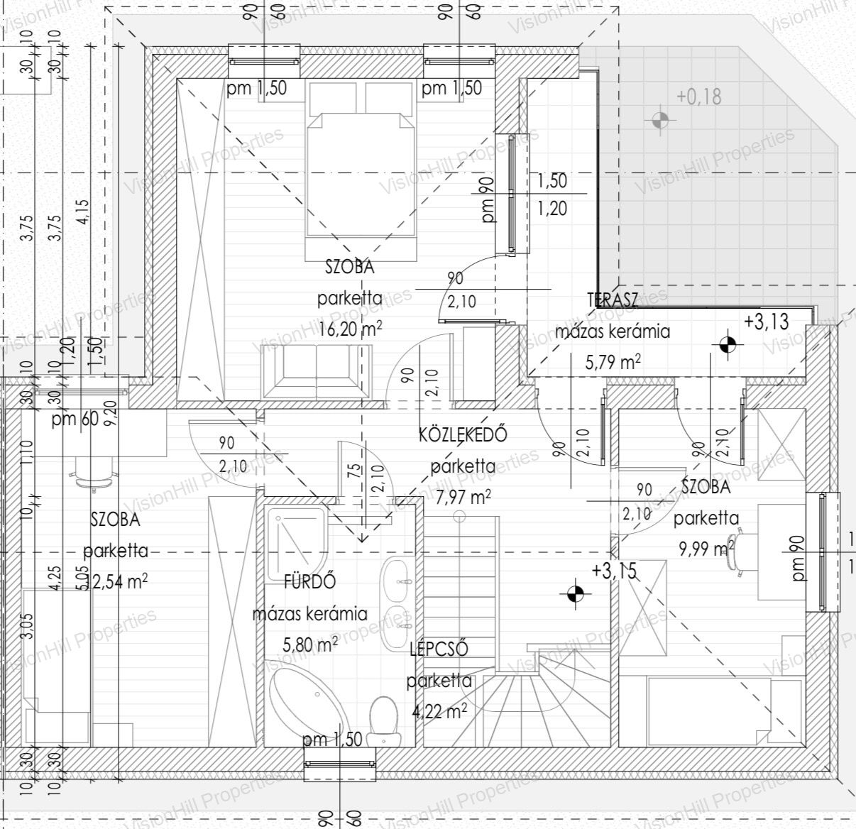
Az ingatlan elrendezése:
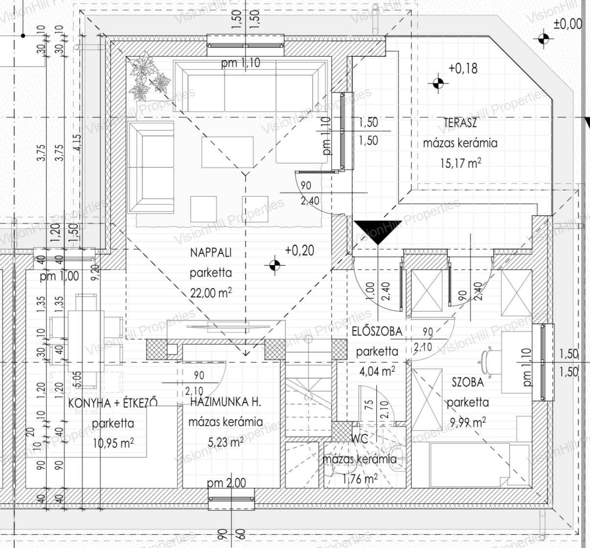
Az alsó szinten található egy amerikai konyhás nappali, 1 hálószoba, előszoba, gépészeti helyiség, wc, terasz.
A felső szinten helyet kap 3 hálószoba és egy fürdőszoba wc-vel.
Az ingatlan Porotherm KLÍMA téglából épült, amely kiváló hő- és hangszigetelő tulajdonságokkal rendelkezik. A téglák speciális belső rácsszerkezete biztosítja a természetes szellőzést és a hőhídmentes kialakítást.
Főbb jellemzők:
Energiatakarékos kialakítás: a ház padlófűtéses, fűtése hőszivattyúval történik.
Fan-coil rendszer biztosítja a nyári hűtést.
A kiváló szigetelésnek köszönhetően a ház rezsiköltsége rendkívül alacsony – akár napelem nélkül is.
Az épület a látványterveknek megfelelően készül el, tartós, esztétikus Travertin kőburkolatokkal.
Kényelmi extrák:
-3 fázisú elektromos hálózat
-Elektromos autótöltő igény esetén
-Elektromos redőnyök és szúnyoghálók
-Térkövezett autóbeálló és járda
-Burkolatok 6.000 Ft/m² árig, beltéri ajtók 80.000 Ft/db-ig – a vevő választhatja ki
-Klíma a nappaliban (hűtő-fűtő funkcióval)
-Elektromos szellőző a WC-ben
-Videós kaputelefon
-Automata garázs- és személykapu
-120 db elektromos kiállás
-Tartós, karbantartásmentes WPC kerítés – 2,5 méter magas, teljes belátás elleni védelemmel
-Terasz burkolása a vételárban
-Minden szobához erkély tartozik
-Konyhaszigethez elektromos kiállás kérhető
-A szomszédos kerítések vakolva, a ház színéhez illően színezve készülnek el
-A garázs igény szerint akár további élettérré is átalakítható.
Az ingatlan vételára: 122.000.000 Ft
Az építkezés minden fázisa dokumentált, így a beépített anyagok és munkafolyamatok utólag is ellenőrizhetőek.
Átadás: a szerződéskötéstől számított 3 hónapon belül.

