További paraméterek
Azonnal költözhető
Jó közlekedéssel- Kilátás: Utcára
- Fűtés: Gázkazán
- Bútorozottság: Gépesített
- Szintek száma: 4
- Komfort: Dupla komfort
- Internet: Optikai
- Akadálymentesítés: Akadálymentesített
Részletes leírás
Felújított, 4 szobás, duplakomfortos lakás a Víziváros szívében – Csendes mellékutcában, mindenhez közel!
INGATLAN HELYSZÍNE
Budapest I. kerületének közkedvelt részén, a Víziváros szívében található ez a kiváló elhelyezkedésű, déli tájolású lakás. A lokáció kivételes: mindössze 5 perc sétára elérhető egy Lidl, a Széna tér, valamint a Mammut bevásárlóközpont, míg 10 percen belül a Batthyány tér, a Duna-part és a Széll Kálmán tér is könnyedén megközelíthető. A környék tömegközlekedési szempontból is elsőrangú: a közelben megtalálható a 2-es metró, a 4-es és 6-os villamos, valamint a 17-es, 19-es, 41-es villamosok, HÉV- és számos buszjárat. Mindezek ellenére az ingatlan egy átmenő forgalomtól mentes, csendes mellékutcában helyezkedik el, így a nyugodt lakókörnyezet is biztosított.
ÉPÜLET JELLEMZŐI
A lakás egy műemlékjellegű, a XIX. század végén épült, jó állapotban lévő, négyemeletes téglaépület földszintjén található. A házban nincs lift, ugyanakkor a lakás akadálymentesített, így idősek vagy mozgásukban korlátozottak számára is ideális választás lehet. Az épület közös elektromos hálózata 2024-ben teljes körű felújításon esett át.
LAKÁS JELLEMZŐI
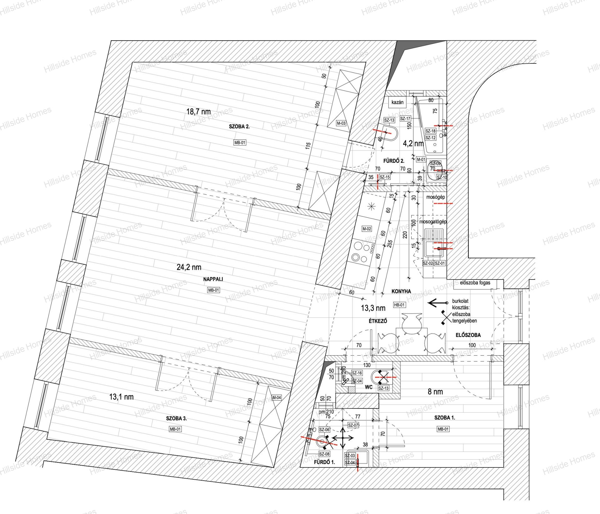
Az ingatlan 85 m²-es alapterülettel rendelkezik, elosztása szerint négy szobás, duplakomfortos kialakítású. A fürdőszobák és a mellékhelyiségek külön és egyben is megtalálhatók, így nagyobb család számára is kényelmes megoldást nyújt. A magas belmagasságú, napfényes helyiségek pedig kellemes térérzetet biztosítanak. A lakás 2025-ben teljeskörű felújításon esett át, amely során a villamos hálózat, vízvezetékek, csatornarendszer és fűtés is teljesen megújult. A beépített konyhabútor a vételár részét képezi, míg a további bútorzat igény szerint megvásárolható.
MŰSZAKI ADATOK
A fűtést modern, kondenzációs gázkazán biztosítja, központi fűtéses rendszerrel. Minden közmű egyedileg mérhető, ami lehetővé teszi a költséghatékony üzemeltetést. A havi közös költség 21.000 Ft.
PARKOLÁS
Parkolás az utcán, közterületen lehetséges, fizetős övezetben. A kerületben lakók számára kedvezményes parkolási lehetőség igényelhető.

