|
54.5 millió Ft
|
|
| Alapterület | 65 m2, 251 m2-es telken |
| Szobák száma | 2 szoba |
| Építési mód | Tégla |
| Állapot | Felújított |
| Emelet | nincs megadva |
További paraméterek
CSOK igényelhető
Otthon Start 3%-os hitellel- Kilátás: Udvari
- Fűtés: Klímás hűtés-fűtés
- Bútorozottság: Bútorozatlan
- Szintek száma: 1
- Komfort: Összkomfort
- Akadálymentesítés: Nem akadálymentesített
Részletes leírás
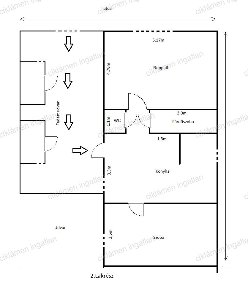
Eladó lakás Sopron belvárosában
Eladásra kínáljuk egy belvárosi sorházi lakás utcafronti részét !
Az udvarban 3 házrész található,
Az ingatlan tágas terekkel, magasabb belmagassággal és kiváló belvárosi elhelyezkedéssel rendelkezik.
65 nm²-es, 2 szoba konyha ebédlő résszel, zuhanyzós fürdőszoba, külön wc.
Az utcafronti szobához egy kisebb galériás rész lett kialakítva.
A lakás a tavalyi évben felújításon esett át.
Kicserélték a villany vezetékeket, új burkolatok lettek.
A fűtést jelenleg 3 db klíma biztosítja, a gáz be van vezetve az ingatlanba.
A konyhabútor megbeszélés tárgyát képezi.
A padlás beépíthető.
Az udvarrész félig betonozott, fedett, autóval be lehet parkolni.
2 kisebb tároló helyiség tartozik még hozzá, pakolásra alkalmasak.
Minden megtalálható a közelben, pár perces sétára, bolt, gyógyszertár, iskola.
Megtekintéséhez időpont egyeztetés szükséges!
