Eladó Panellakás, Budapest, XI. kerület                
                    
#389212
                    | 
                                 
84.9 millió Ft                                 
                             | 
                        |
| Alapterület | 48 m2 | 
| Szobák száma | 2 szoba | 
| Építési mód | nincs megadva | 
| Állapot | Jó | 
| Emelet | 2. emelet | 
További paraméterek
- Kilátás: Kertre néző
 - Fűtés: Házközponti egyedi méréssel
 - Komfort: Összkomfort
 
Részletes leírás
CSAK AZ IRODÁNK  KÍNÁLATÁBAN !
A XI. kerület Csurgói úton a TÖLGYES LAKÓPARKBAN, egy 2 szobás, amerikai konyhás, 2 emeleti lakást 13 m2-es fedett erkéllyel kínálunk megvételre.
A lakás jó állapotú, modern, praktikusan berendezhető és mindkét szobából kiléphetünk a zöldövezeti kilátást adó nagy erkélyre.
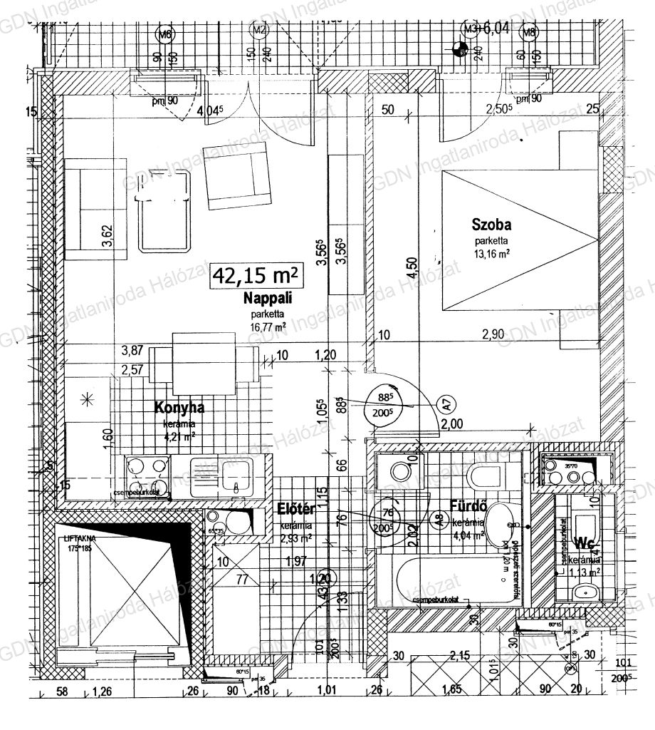
A lakás helyiségei:
 Az előtér 3 m2, nappali amerikai konyhával 16,8 m2, hálószoba 13 m2, fürdőszoba + WC 4 m2, terasz 13 m2.
A helyiségek elrendezését, méreteit lásd az ALAPRAJZON !
A lakópark zárt, biztonsági szolgálat által őrzött terület.
A lakás  kulturált zárt lépcsőházból, lifttel is megközelíthető.
A közös költség 20.000 Ft /hó.
Az ingatlan, TEHERMENTES, egy tulajdonostól eladó!
KIVÁLÓ AJÁNLAT lehet azoknak, akik biztonságos, zöldövezeti, nyugodt otthont keresnek.
Az ingatlan tömegközlekedése NAGYON JÓ !
Tétényi út és a Fehérvári út közelsége miatt, busszal, villamossal könnyen megközelíthető. A parkolás közterületen ingyenes.
A közelben minden megtalálható, óvoda, iskola, orvosi rendelő, parkok, játszóterek és bevásárlási lehetőségek.
Hiteligénylés miatt kezdeményezheti díjmentesen a kapcsolatfelvételt hitelszakértő munkatársunkkal.
Az Ingatlan megtekintése ELŐRE  EGYEZTETETT  IDŐPONTBAN
lehetséges.
Amennyiben felkeltette érdeklődését, további kérdéseivel VÁROM JELENTKEZÉSÉT !
(G.I.)
                    
                                