Nyitólap Hirdetésfeladás Kapcsolat
Eladó Ikerház, Gödöllő
#2518004
109.9 millió Ft
Alapterület 103 m2,  450 m2-es telken
Szobák száma 4 szoba
Építési mód Tégla
Állapot Új építésű
Emelet nincs megadva

További paraméterek

  • ÁRCSÖKKENÉS
  • ÚJ ÉPÍTÉSŰ
  • Fűtés: Hőszivattyú
  • Szintek száma: 1
  • Komfort: Összkomfort

Részletes leírás

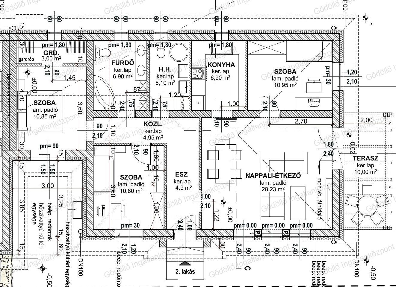
Gödöllő központhoz közeli részén, csendes, újépítésű házakkal körbevett utcában, megbízható referenciákkal rendelkező kivitelező által épülő, modern nappali + 3 szobás ikerházfél eladó!

Műszaki paraméterek:
- 30-as Porotherm tégla falazat + 15cm dyrvit szigetelés,
- beton cserépfedés,
- födémen 30cm vastag kőzetgyapot, aljzaton 15cm, lábazaton 13cm szigetelés,
- 3 réteg üvegezésű, 5 légkamrás műanyag nyílászárók,
- hőszivattyú padlófűtéses hőleadással, 
- dupla 30-as fal választja el a másik oldaltól,
- energetikai besorolása: A

Elosztás:
- Előszoba, nappali-konyha-étkező, közlekedő, 2 szoba, fürdő, vendégmosdó, háztartási helyiség + 10nm terasz

Telek:
- 460nm-es telekre épül az ingatlan, az udvarban gyalogos bejáró és fedett kocsibeálló kerül kialakításra.

Környék:
- Csendes, nyugodt, központhoz közeli részen helyezkedik el.
- Helyi busz, hév, autópálya, iskola, óvoda, közért stb. percek alatt könnyen elérhető!

Az ingatlant több referenciával rendelkező, megbízható kivitelező építi! Burkolatok, belső ajtók a vevői igényei szerint még szabadon választhatók!

Komoly érdeklődés esetén a referencia házak személyesen is megtekinthetők!

Kérésre teljes műszaki tartalmat, alaprajzot szívesen küldünk!

Irányár: 109,9Mft

Hivatkozási szám: 2518004.

Megtekinthető telefonos időpont egyeztetés alapján:

Sápi Balázs +36 20 772-2429 sapibalazs@godolloi.hu 
GÖDÖLLŐ INGATLANKÖZPONT - www.godolloi.hu: Gödöllő és környéke legnagyobb ingatlan választéka /Gödöllő, Szada, Veresegyház, Kistarcsa, Kerepes, Erdőkertes, Fót, Dunakeszi/ eladó-kiadó családi ház, telek, lakás! Ingatlan építés és felújítás!

 

Kapcsolat

Sápi Balázs

Ossza meg a hirdetést:
FacebookGplusTwitter