|
265 millió Ft
|
|
| Alapterület | 165 m2, 305 m2-es telken |
| Szobák száma | 5 szoba |
| Építési mód | Tégla |
| Állapot | Új építésű |
| Emelet | nincs megadva |
További paraméterek
CSOK igényelhető
Jó közlekedéssel
Kertkapcsolatos
Zöldövezeti- Kilátás: Panorámás
- Fűtés: Hőszivattyú
- Komfort: Dupla komfort
- Internet: Optikai
Részletes leírás
Megvételre kínálunk a 3. kerület egyik legszebb részén, az Ürömhegyen, egy minimál stílusú, ÖRÖKPANORÁMÁS, dupla garázsos, HÓSZIVATTYÚS, teraszos, erkélyes, 165 nm-es, 5 szobás, dupla komfortos luxus
Megvételre kínálunk a 3. kerület egyik legszebb részén, az Ürömhegyen, egy minimál stílusú, ÖRÖKPANORÁMÁS, dupla garázsos, HÓSZIVATTYÚS, teraszos, erkélyes, 165 nm-es, 5 szobás, dupla komfortos luxus ikerházat. Az ingatlan egy villaparkban épül, ennek megfelelő műszaki tartalommal és kivitelezéssel.
AZ ÖRÖKPANORÁMÁS TERASZ ÉS AZ ERKÉLY EGYÜTTES MÉRETE 64 nm.
Minőségi alapanyagokból, igényes kivitelezés jellemzi a projektet, ahol a biztonság és a kényelem mellett az energiatakarékosság volt a fő szempont. A ház átgondolt tervezésének köszönhetően kényelmes, otthonos, szellős, ugyanakkor bővelkedik a reprezentatív, elegáns elemekkel. Az ingatlan klímájáról, valamint a használati melegvíz ellátásáról egy modern, energia takarékos, innovatív levegő-víz hőszivattyú gondoskodik H tarifás üzemeltetéssel.
A hőmérséklet helyiségenként állítható.
A hőszivattyú télen a padlón és a mennyezeten fűt, míg a nyári hónapokban a mennyezeten hűt, így egész évben biztosított a kellemes hőmérséklet. Az ingatlan külső szigetelése Dryvit rendszerrel, valamint prémium három rétegű nyílászáró rendszerrel lett kialakítva. Ennek köszönhetően az ingatlan méretéhez képest a rezsi költségek minimalizálódnak.
Természetesen alumínium redőnyök, elektromos autó töltő a garázsban, exkluzív vakolat rendszer, biztonsági ajtó és egyéb extrák kerülnek beépítésre ebbe a nem mindennapi ingatlanba.
Az összes közmű külön mérőórákról üzemel.
Ennél a beruházásnál most lehetősége van kompromisszumok nélkül egy olyan lakásba költözni, ahol Ön kiválaszthatja a hideg és meleg burkolatokat, szanitereket, valamint az egyéb kiegészítőket a családja legnagyobb megelégedésére, ez által személyre szabva álmai otthonát.
A kulcsra kész ár tartalmazza az elektromos redőnyöket, három rétegű nyílászárókat, riasztó előkészítést, kaputelefon és motoros kapu kiépítést, valamint napelem előkészítést. A gépjárművekkel az ingatlanhoz tartozó garázsban lehet biztonságosan parkolni.
Az ingatlanhoz 305 nm-es privát telek tartozik.
A projekt megközelítőleg 3600 nm-es telken helyezkedik el, ahol 4 ikerház, vagyis 8 lakás kerül megépítésre.
A lakások ára az alapterülettől és a telek nagyságától függően változnak: 219 m Ft - 295 MFt
Igénybe vehető lehetséges kedvezmények:
CSOK
5% Áfa visszatérítés
Babaváró hitel
Illeték kedvezmény vagy mentesség.
Az ingatlan árát a kulcsrakész állapotra adtuk meg, 2025. októberi költözéssel.
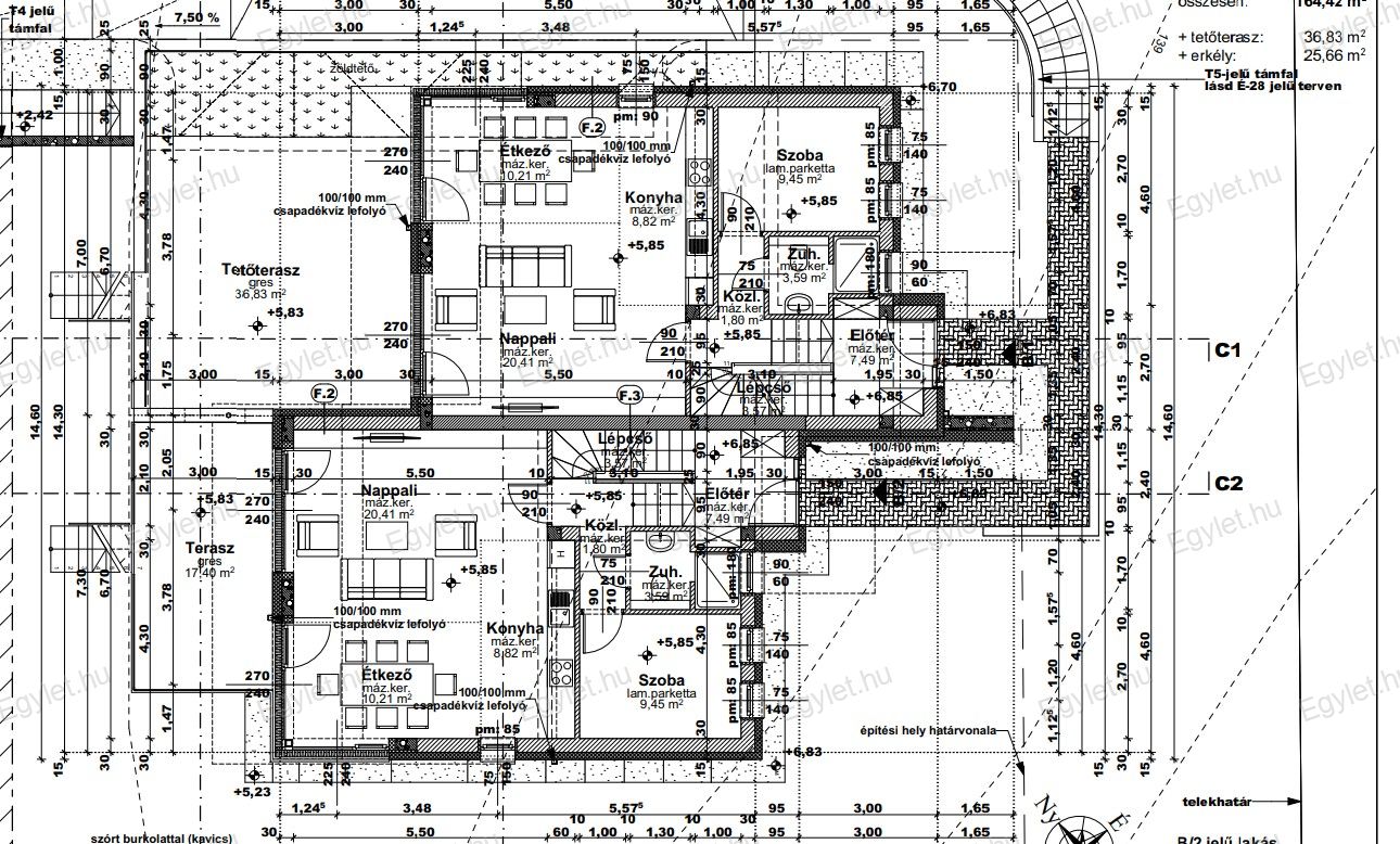
Helyiség lista a földszinten:
- Előtér
- Közlekedő
- Szoba
- Fürdőszoba
- Amerikai konyha,
- Étkező
- Nappali
- Terasz
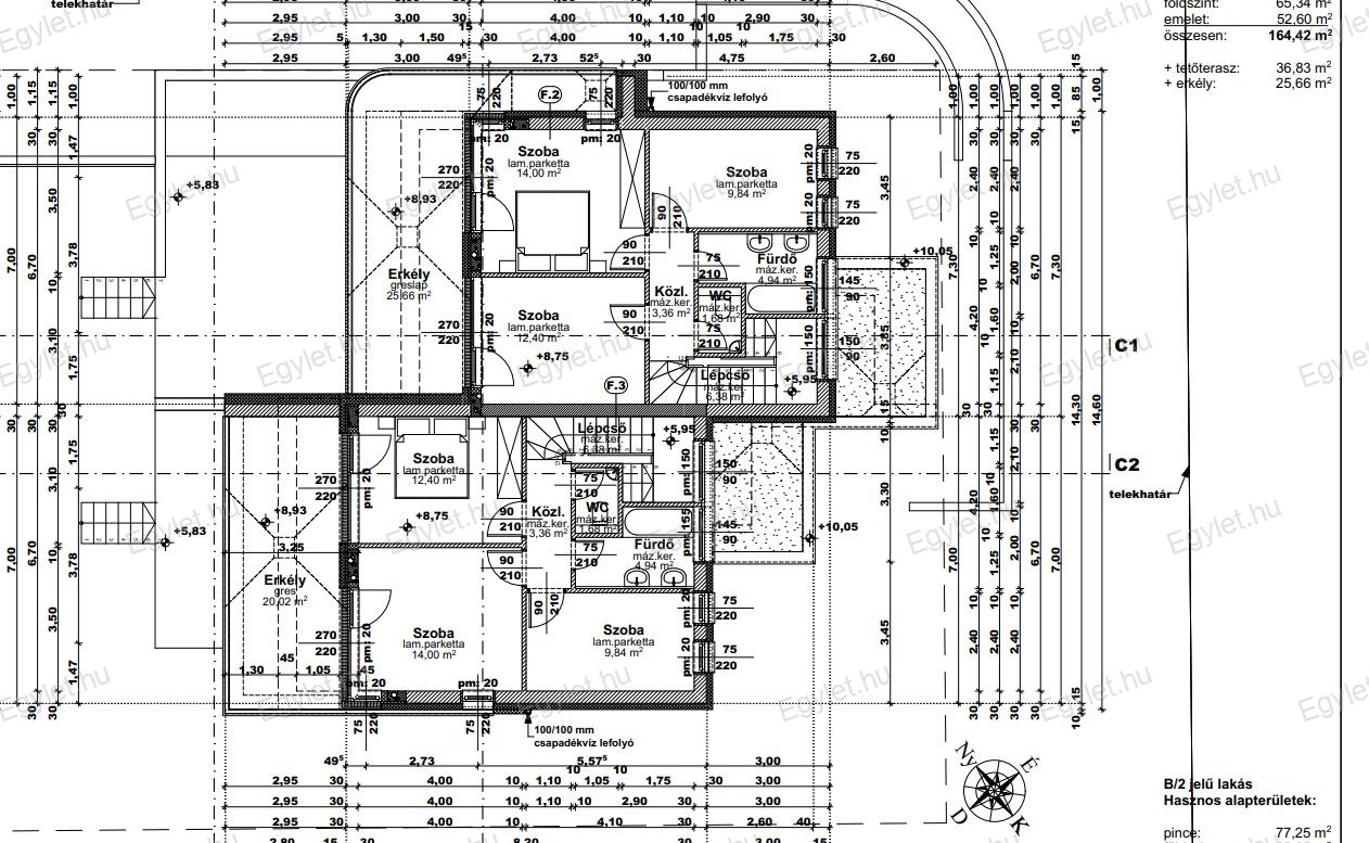
Helyiség lista az emeleten:
- Közlekedő
- Lépcsőház
- Fürdőszoba
- WC
- Három szoba
- Gardrób
- Erkély
Helyiség lista a garázs szinten:
- Lépcsőház
- Gépészet
- Garázs
Az ingatlan biztonságos, nyugodt, csendes, kertes házas övezetében, a 3. kerület egyik legszebb részén található, az Ürömhegy területén. A környék fejlett infrastruktúrájának köszönhetően bővelkedik a szociális intézményekben, bölcsőde, óvoda, általános iskola, orvosi intézmények, bevásárlási lehetőségek, találhatóak a közelben.
Közlekedése kiváló, busszal Budapest központja vagy vonatokkal a Nyugati pályaudvar könnyedén megközelíthetőek.
Hitel, CSOK igénylésben díjmentes ügyintézéssel állunk rendelkezésére! Nálunk kiválaszthatja az Ön számára legkedvezőbb ajánlatot.
Várom megtisztelő érdeklődésüket.

