|
70 millió Ft
|
|
| Alapterület | 196 m2, 726 m2-es telken |
| Szobák száma | 6 szoba |
| Építési mód | Tégla |
| Állapot | Újszerű |
| Emelet | nincs megadva |
További paraméterek
Áron alul
Azonnal költözhető
CSOK igényelhető
Jó közlekedéssel
Kertkapcsolatos
Otthon Start 3%-os hitellel
Sürgős
Zöldövezeti- Kilátás: Kertre néző
- Fűtés: Cirkó
- Szintek száma: 2
Részletes leírás
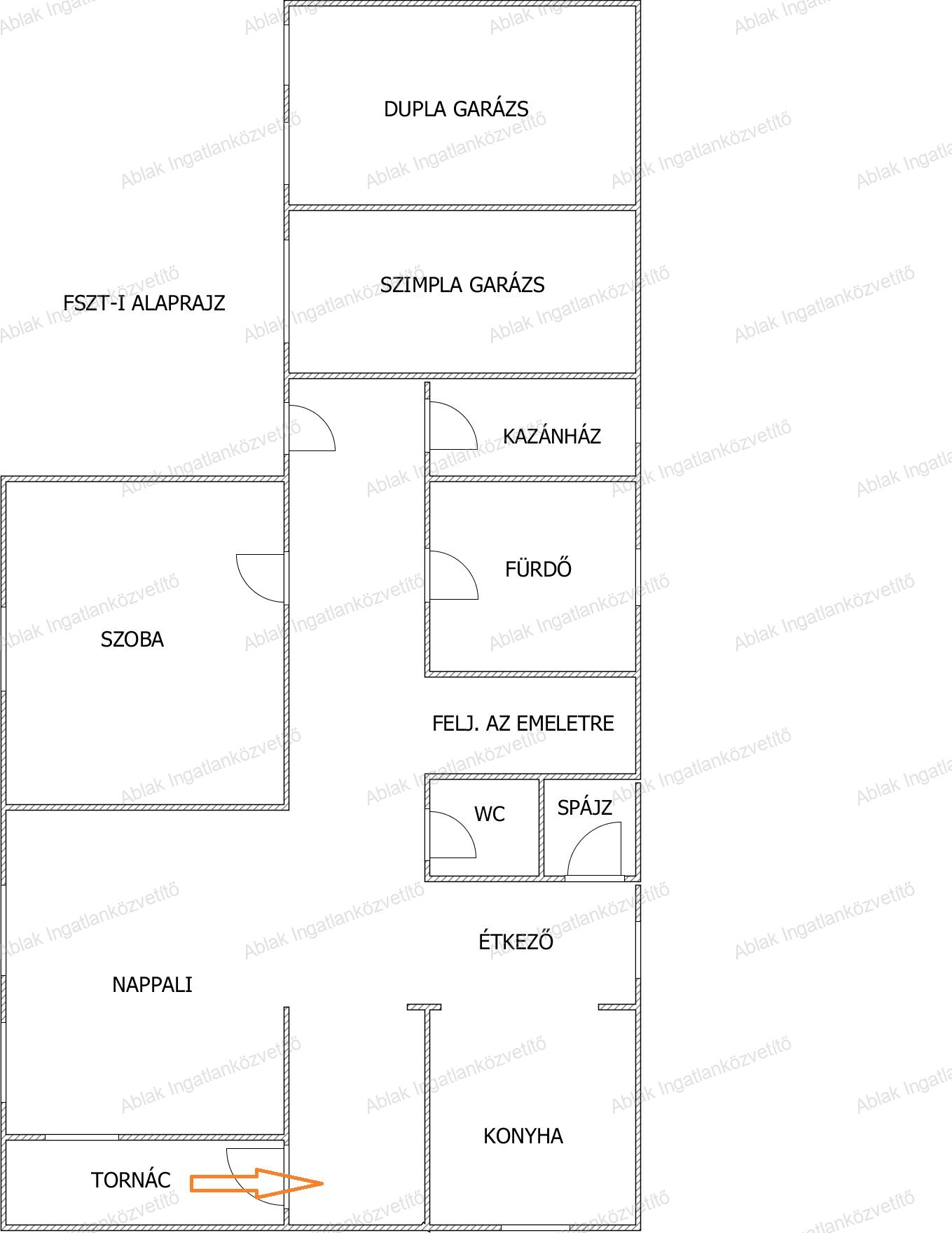
Tiszakécske Kerekdomb részén, 2023 ban extrán felújított 6 szobás családi ház, 3 garázzsal eladó.
Tiszakécske Kerekdomb részén, 750m2-es telken, 2023 ban extrán felújított, 2 szinten 196m2, 6 szobás családi ház, 3 garázzsal eladó.
A ház elrendezése : Alsó szinten: Előszoba, nappali -étkező konyha, kamra, külön wc és fürdőszoba amelyben tusoló és sarokkád is kapott helyet illetve a folyosó végén egy hálószoba és egy mosókonyha található.
Cirkó fűtés van, a nappali-étkezőben padlófűtés, a többi helységben radiátoros, és kialakított hűtő-fűtő klíma.
Emeleti részen: Tusolós fürdőszoba wc-vel, 4 nagy szoba és egy fél szoba található.
Az udvaron 3 garázs van, ami fölött egy beépítetlen tér, mely kiváló lehet akár egy külön lakrésznek, hobbi szoba is külső feljáróval.
A ház kívülről és belülről is teljesen fel lett újítva. Kívül egy 15cm-es szigetelést és nemesvakolatot, a tető új léceket, fóliát , szigetelést és filces aljú cserepes lemezt kapott. A tetőszigetelés 2x20 cm a cserepes lemez miatt , hogy ne kopogjon.
Új padlóburkolatot, járólapot, Új vízbetáp is lett csinálva. A vízvezetékek ki lettek cserélve az összes szaniterrel együtt. A villanyvezetékek újra lettek kötve és a dobozban is rendezve lettek a kötések is. A fűtés korszerűsítve lett, az emeleten minden új most lett kialakítva (2023.).
A nyílászárók műanyagok a földszinten , az emeleten pedig fa és műanyag.
A garázson is megtörtént a léc és a tető csere.
Az utca 3 éve lett leaszfaltozva, optikai internet bevezetve.
A kert rendezése a következő tulajra vár. Belülről max, egy tisztasági festés szükséges.
Irányár:70M;
Érd:0630/9594-299;
Amennyiben felkeltettem érdeklődését, kérem hívjon.

