Nyitólap Hirdetésfeladás Kapcsolat
Eladó Családi ház, Téglás
#20000057
84.9 millió Ft
Alapterület 103 m2,  1 150 m2-es telken
Szobák száma 4 szoba
Építési mód Tégla
Állapot Új építésű
Emelet nincs megadva

További paraméterek

  • Kilátás: Kertre néző
  • Fűtés: Hőszivattyú
  • Bútorozottság: Bútorozatlan
  • Komfort: Dupla komfort

Részletes leírás

Eladó ikerház Téglás déli részén – új, modern otthon családoknak!

 

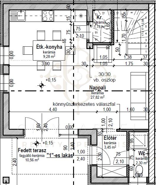
Ha családi házra vágytok, ahol a gyerekek biztonságban játszhatnak, a szülők pedig nyugodtan élvezhetik a kert nyugalmát, akkor ez az új építésű, 94 m² lakótérrel + 11 m² terasszal + 7 m² erkéllyel rendelkező, amerikai konyhás nappali-étkező + 3 hálószobás kialakítású, 2025-ben átadott ikerház Téglás központi részén tökéletes választás lesz számotokra.

 

Kivételes elhelyezkedés

A lakópark Téglás déli részén, széles, rendezett utcában található.
Pár száz méterre Penny és Lidl áruház is elérhető, így a mindennapi bevásárlás is gyalogosan megoldható.
A zárt, motoros nagykapuval védett lakópark biztonságos, csendes és családbarát környezetet kínál, ahol a gyerekek is nyugodtan játszhatnak az udvaron.

 

Minőségi építés és modern technológia

·       2025-ben épült, új építésű ikerház, kiváló műszaki tartalommal

·       Vasbeton sávalap, 30 cm-es téglafal, 15 cm homlokzati és 25 cm mennyezeti hőszigetelés

·       3 rétegű, műanyag nyílászárók antracit motoros redőnnyel felszerelve

·       Hőszivattyús fűtésrendszer padlófűtéssel, H-tarifás mérőhely előkészítve

·       Split klíma a nappaliban

·       Korszerű gépészet, minőségi burkolatok és szaniterek

·       Két fürdőszoba: az egyik kádas (emeleti), a másik zuhanyzós (földszinti)

·       Fedett földszinti terasz

·       Parkosított, 110 m²-es privát udvarrész, térkövezett autóbeállóval

 

Családok igényeire szabva

 

Az ingatlan praktikus elrendezésű, teljes értékű emeleti szinttel rendelkezik (nem tetőtér!).
A három ideális méretű hálószoba tökéletesen alkalmas 2–3 gyerekes családok számára.
A tágas, napfényes konyha-nappali pedig központi helyszíne lehet családi vacsoráknak, baráti összejöveteleknek vagy ünnepi alkalmaknak.

 

A lépcső alatti háztartási helyiség praktikus megoldás a mosógép és gépészet számára, így minden helyisége jól kihasználható és átgondolt.

 

Kinek ajánljuk?

Ez az otthon olyan családoknak ideális, akik:

·       biztonságos, zárt lakóparkban szeretnének élni,

·       fontosnak tartják a modern technológiát és az energiatakarékos megoldásokat,

·       Debrecen vagy Nyíregyháza közelségét értékelik, de elérhetőbb áron keresnek új házat,

·       szeretik a kertes ház nyugalmát és a lakópark exkluzivitását.

 

Az ingatlan rövid határidővel birtokba vehető.

 

Ár: 84,9 millió Ft

 

Tedd meg az első lépést az új családi otthon felé!


Ha egy biztonságos, modern és barátságos környezetben szeretnél élni, ahol a gyerekek szabadon játszhatnak, és minden nap a nyugalom szigetére érkezz haza – akkor ne várj tovább!
Hívj most, és nézd meg személyesen ezt a különleges téglási ikerházat!
Segítek, hogy mielőbb otthonra találjatok benne.

Kapcsolat

Valentényi Zoltán

tulajdonos, okleveles építőmérnök, ingatlanszakértő

+36 20 483-9393
v.zoltan@citycartel.hu
City Cartel, Debrecen
debrecen.citycartel.hu
Ossza meg a hirdetést:
FacebookGplusTwitter