|
39.5 millió Ft
|
|
| Alapterület | 134 m2, 1 220 m2-es telken |
| Szobák száma | 1 szoba + 3 félszoba |
| Építési mód | Tégla |
| Állapot | Új építésű |
| Emelet | nincs megadva |
További paraméterek
Áron alul
Zöldövezeti- Kilátás: Udvari
- Fűtés: Vegyes tüzelés
- Szintek száma: 1
- Komfort: Összkomfort
- Internet: ADSL / ADSL2
Részletes leírás
Szorgalmatos – egy igazi ékszerdoboz település, ahol most különleges lehetőség vár!
Szorgalmatos – egy igazi ékszerdoboz település, ahol most különleges lehetőség vár!
Eladó egy átépítés alatt álló, teljes kivitelezési engedéllyel rendelkező családi ház, amelyet most még saját ízlésed szerint fejezhetsz be!
A projekt jelenleg 55%-os készültségen áll, a nagy, költséges szerkezetépítési munkák már elkészültek:
✔ A falak állnak
✔ A tető fent van, prémium minőségben
✔ A nyílászárók beépítve
✔ Az elektromos hálózat behúzva
✔ 3×20A áram, H-tarifa előkészítve
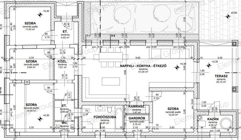
A tervezett nettó 134 m²-es otthon tökéletes elrendezést kínál:
4 külön szoba + egy amerikai konyhás, PANORÁMÁS, 41 m²-es nappali, ami minden családi tér álma!
A ház egy 1220 m²-es, rendezett portán helyezkedik el, aszfaltozott utcában, csendes, biztonságos környezetben. Gázcsonk, a telken.
A település kiváló választás családoknak is: a helyi iskola kifejezetten jó hírű, a környék barátságos és nyugodt.
Ha szeretnél egy szuper helyen új otthont teremteni, úgy hogy a legtöbb belső megoldást TE határozod meg, akkor ez a lehetőség Neked szól!
Hívj és megbeszéljük a részleteket.
Akár befektetésnek, de saját részre talán még jobb.
Hívj, és mutatom.

