Nyitólap Hirdetésfeladás Kapcsolat
Eladó Családi ház, Szombathely, Parkerdő lakókert
#706000234
80.75 millió Ft
Alapterület 101 m2,  431 m2-es telken
Szobák száma 4 szoba
Építési mód Tégla
Állapot Új építésű
Emelet nincs megadva

További paraméterek

  • CSOK igényelhető
  • Jó közlekedéssel
  • Kertkapcsolatos
  • Zöldövezeti
  • Kilátás: Udvari
  • Fűtés: Hőszivattyú
  • Komfort: Dupla komfort

Részletes leírás

Szombathelyen az Oladi platón év végéig megépülő családi ház eladó eladó!

Szombathely az Oladi Platón a város legkedveltebb és folyamatosan bővülő, fejlődő családi házas lakóövezezetében családi ház 2025. év végi átadással eladó.

 

Kedvezményes hitel, más finanszírozási lehetőségek igénybe vehetőek.

 

Válassza ki Ön a beépítendő burkolatokat, csempe, járólap, parketta, spc, wpc...

Válasszon színt az ajtónak, válasszon csapokat, zuhanyzót, térburkolatot.

 

Modern-időtálló tervezés, alacsony resziköltség

2 illetve 3 szoba + nappali kialakítás

hőszívattyú, napelem bővíthetőség

Különálló garázs + kertkapcsolat

CSOK + CSOK hitel + babaváró+ kedvező hitelajánlatok

 

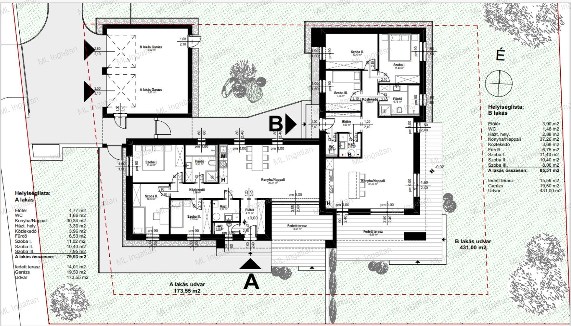
A, épület: 80 m2 + 14 m2 fedett terasz + 395 m1 kert + 19,5 m2 garázs

 

B. épület : 86 m2 + 15 m2 fedett terasz + 431 m1 kert + 20 m2 garázs

 

Előtér 4,77 m2

WC 1,66 m2

Konyha/Nappali 30,34 m2

Házt. hely. 3,30 m2

Közlekedő 3,96 m2

Fürdő 6,53 m2

Szoba I. 11,02 m2

Szoba II. 10,40 m2

Szoba III. 7,95 m2

A lakás összesen: 79,93 m2 fedett terasz 14,01 m2 Garázs 19,50 m2 Udvar 173,55 m2

 

A Garázs ára megrendelés esetén: 4.650.000 ft

 

Műszaki tartalom:

Falazat: a teherhordó felmenő falazatok 30 cm vastag Wienerberger Poroterm 30 N+F kerámia falazóelemekből készül (tégla)

Homlokzati hőszigetelő rendszer: a homlokzati falfelületek 15 cm vtg. EPS hőszigetelő rendszert, a lábazatok 10 cm vtg. XPS lábazati hőszigetelő rendszert kapnak.

Padlás hőszigetelése: 30 cm ásványgyapot szigetelőanyaggal történik

Külső nyílászárók: műanyag, 3 rétegű üvegezéssel szerelt, fehér színű ablakok, 5 kamrás, fehér kilinccsel, a kiviteli terven szereplő nyitásirányokkal

Meleg burkolat: laminált parketta, szegély, alátét habfólia: bruttó 4.500.- Ft/m2 árig

Hideg burkolat: bruttó 5.500.- Ft/m2 árig

Fűtés és meleg vízellátás, égéstermék elvezetés, csapadékvíz elvezetés: a fűtést biztosító háztartási helyiségben elhelyezett 10 Kw Gree Versati 3 hőszivattyú, padlófűtéses rendszer készül 1 db  szabályozható termosztáttal.

Riasztó előkészítés 5 db érzékelési ponttal. Kaputelefon előkészítés. Belső világítás előkészítés (vezetékes kiépítése helyiségenként egy db kiállással)

 

Ügyfeleim igénybe vehetik szolgáltató cégünk teljes csomagját.: -hitelügyintézés, komplett berendezés megtervezés, bérbeadás lebonyolításáig teljes körű segítséget nyújt.

Részletekért kérem hívjon.

Egyeztessünk időpontot egy személyes találkozóra és a helyszínen megtekintheti az ingatlant..

Simon Zsolt

06209504680

ml.ingatlan1@gmail.com

Kapcsolat

Simon Zsolt

Irodavezető

+36 20 950-4680
zsolt26@gmail.com
ML Ingatlan

Ossza meg a hirdetést:
FacebookGplusTwitter