Nyitólap Hirdetésfeladás Kapcsolat
Eladó Családi ház, Sopron, Ágfalvi úti lakópark
#190200789
169 millió Ft
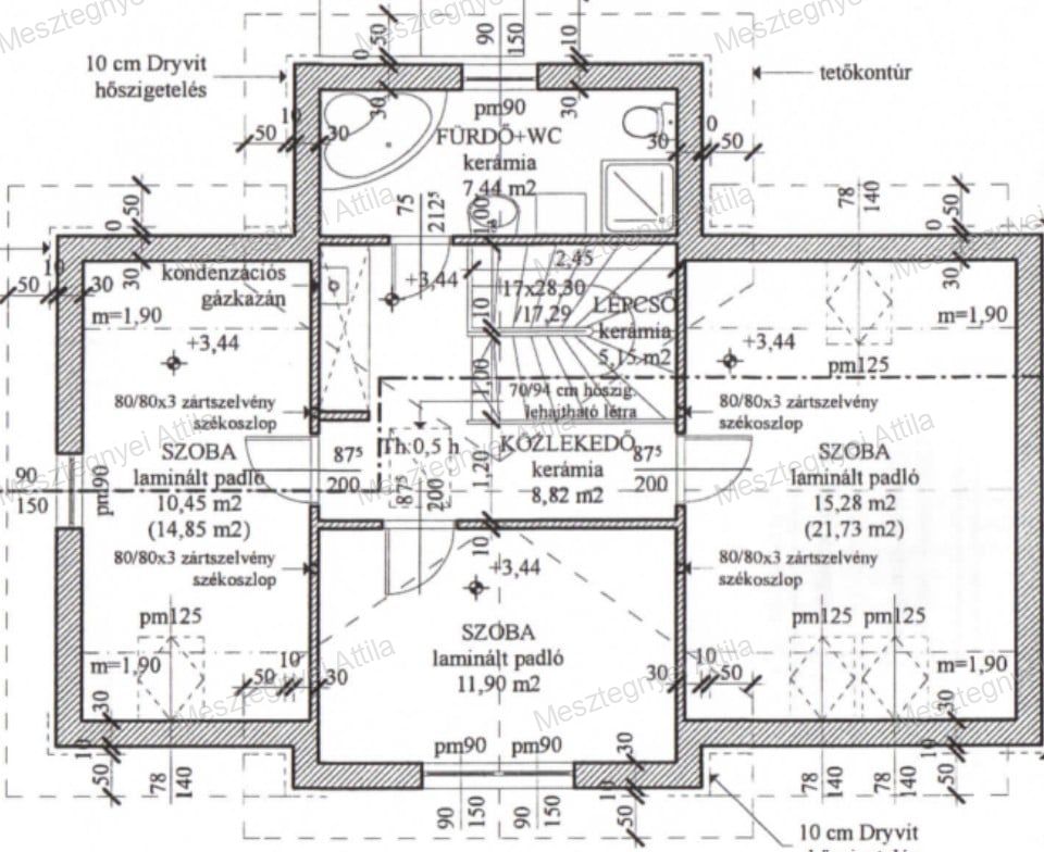
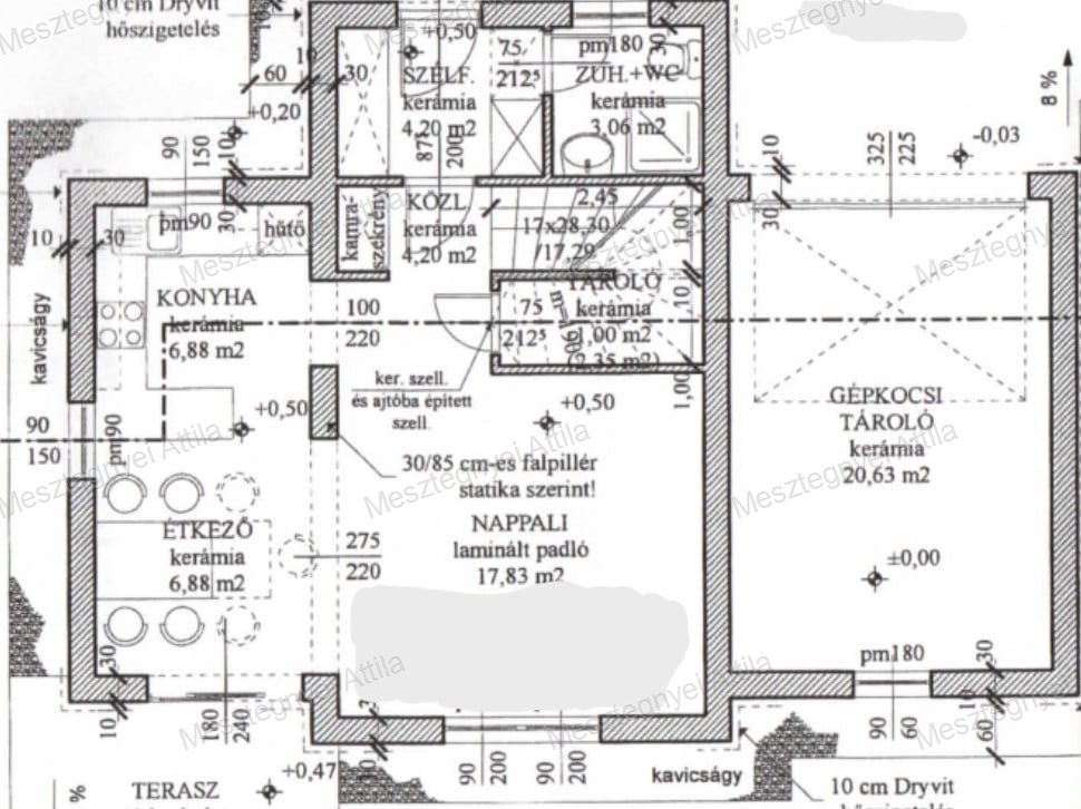
Alapterület 135 m2,  380 m2-es telken
Szobák száma 4 szoba
Építési mód Tégla
Állapot Kiváló
Emelet Földszint

További paraméterek

  • CSOK igényelhető
  • Jó közlekedéssel
  • Kertkapcsolatos
  • Otthon Start 3%-os hitellel
  • Zöldövezeti
  • Kilátás: Kertre néző
  • Fűtés: Cirkó
  • Bútorozottság: Részben bútorozott
  • Komfort: Összkomfort
  • Internet: Szélessávú (>10Mbps)
  • Akadálymentesítés: Nem akadálymentesített

Részletes leírás

Eladó családi ház Sopronban, az Ágfalvi úti lakóparkban!

2016-ban épült, 135 m²-es, igényes kialakítású családi ház, 380 m²-es gondozott kerttel.
A modern otthon minden részlete a kényelmet és a praktikusságot szolgálja:

Főbb jellemzők:

135 m² lakótér, átgondolt elrendezéssel

380 m² kert automata öntözőrendszerrel, vakondhálóval

Saját játszótér és biciklitároló

Garázs + fedett autóbeálló

Belső kialakítás:

Elegáns kandalló a nappaliban

Modern Bosch konyhagépek + külön borhűtő

Üvegkorlát, stílusos részletekkel

Szülői háló saját gardróbbal

Klímával felszerelt 

Vízlágyitó

Riasztó

Igény esetén bútorozottan is eladó

Fűtése gázkazánnal megoldott, így gazdaságos és megbízható.

Ez az ingatlan ideális választás mindazoknak, akik szeretnének egy modern, praktikus és kényelmes otthont Sopron egyik legkedveltebb lakóparkjában!

- További információért és megtekintésért hívjon bizalommal: +36 70 942 4509

Kapcsolat

Mesztegnyei Attila

Irodavezető

+36 70 942-4509
mesztegnyei@gmail.com
Mesztegnyei Attila
www.mesztegnyei.hu
Ossza meg a hirdetést:
FacebookGplusTwitter