Nyitólap Hirdetésfeladás Kapcsolat
Eladó Családi ház, Siófok, Fokihegy
#695401669
164.99 millió Ft
Alapterület 120 m2,  562 m2-es telken
Szobák száma nincs megadva
Építési mód Tégla
Állapot Újszerű
Emelet Földszint

További paraméterek

  • Azonnal költözhető
  • CSOK igényelhető
  • Jó közlekedéssel
  • Kertkapcsolatos
  • Otthon Start 3%-os hitellel
  • Parkoló az árban
  • Terasz
  • Zöldövezeti
  • Kilátás: Udvari
  • Fűtés: Hőszivattyú
  • Bútorozottság: Bútorozott
  • Komfort: Összkomfort

Részletes leírás

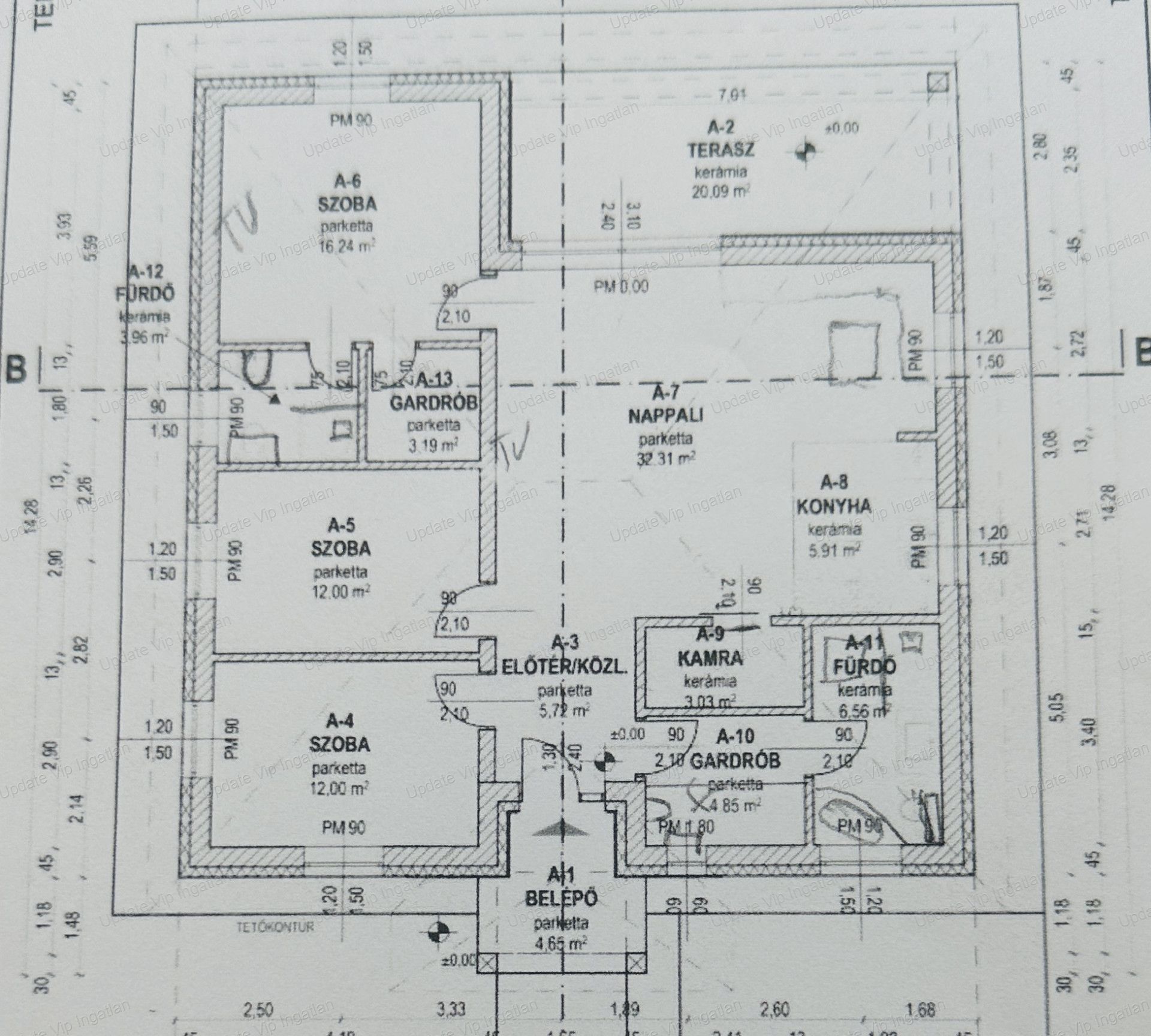
SIÓFOKON ELADÓ, ÚJSZERŰ CSALÁDI HÁZ!

A siófoki Update Vip Ingatlaniroda kínálatából:

Eladó Fokihegy kedvelt családi házas övezetében ez az újszerű
3 szoba nappali-konyha-étkezős családi ház.
562m2 saját telekkel , gyönyörűen karbantartva.
A hátsó udvaron műfű lett letéve.
A házban számos extra található.
A hőszivattyúról működik a melegvíz ellátás is.
Hőcserélős szellőztető lett kiépítve a tulajdonos kérésére.
Hőszivattyús mennyezet hűtés, padlófűtés.
A 27m2-es keleti tájolású fedett terasz fűthető!
Az udvaron egy télikertet képzelt el a tulajdonos aminek az előkészítése megtörtént.
Itt jacuzzi, tusoló, wc és kerti tároló kapna helyet. A kiállások megvannak a befejezés már az új tulajdonosára vár.
A ház 2022-ben épült.
Riasztó, elektromos redőny
A bejárat előtti rész teljese területe viacolorral lett letéve.
2 egységes fedett kocsibeálló
Az egyik szobából saját gardró és fürdőszoba nyílik.
Továbbá van még egy tusolós, fürdőkádas fürdőszoba, külön wc ahol a gépészet is található.
A konyhából nyílik egy tolóajtós tároló/kamra.
A ház a benne lévő bútorokkal eladó.
Amennyiben felkeltette az érdeklődését ez az újszerű családi ház, hívjon elérhetőségemen!

Bővebb információért, megtekintés egyeztetésért,
kérem keressen a megadott elérhetőségeimen!
UPDATE VIP INGATLAN IRODA további szolgáltatásai:
Energetikai tanúsítvány készítés, Díjmentes-bank semleges hitelügyintézés,
Ügyvédi háttér, Közjegyző, Földhivatali ügyintézés, Építész, Lakberendező,
Érintésvédelmi felülvizsgálat!

Kapcsolat

Várdai Andrea

Ingatlan referens-Tulajdonos

Ossza meg a hirdetést:
FacebookGplusTwitter