Nyitólap Hirdetésfeladás Kapcsolat
Eladó Családi ház, Siófok, Sóstó
#17112650
86 millió Ft
Alapterület 72 m2,  320 m2-es telken
Szobák száma 3 szoba
Építési mód Tégla
Állapot Új építésű
Emelet nincs megadva

További paraméterek

  • CSOK
  • CSOK igényelhető
  • Erkélyes/teraszos
  • Jó közlekedéssel
  • Kertkapcsolatos
  • Otthon Start 3%-os hitellel
  • Zöldövezeti
  • Kilátás: Vegyes
  • Fűtés: Padlófűtés
  • Bútorozottság: Bútorozatlan
  • Szintek száma: 1
  • Komfort: Összkomfort

Részletes leírás

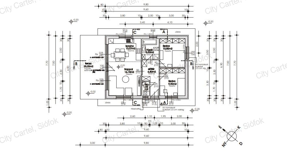
A City Cartel Balaton Ingatlaniroda eladásra kínál Siófok Sóstó üdülőövezeti részén, újonnan épülő, modern kialakítású, helytakarékos családi házat, melynek nettó alapterülete 60 m2 + 23 m2 terasz.


A házhoz egy hatalmas terasz tartozik, melyre a nappaliból egy tolóajtón keresztül léphetünk ki, a hátsó intim kerthez közvetlen kapcsolattal rendelkezik. A belső elosztása a következő: 2 hálószoba, konyha, világos, óriási üvegfelülettel rendelkező nappali, egy tusolós fürdőszoba WC-vel, valamint külön WC került kialakításra. 


Az ingatlan a Balatontól mindössze 600 méterre található, nyugodt csendes környezetben. A telekre a gáz kivételével minden közmű bevezetésre került, teljesen körbe van kerítve.

 

A ház téglából épül, fa födémmel, fa tetőszerkezettel, korcolt lemezfedéssel. A külső nyílászárók antracit színűek, belül fehérek hőszigeteltek, műanyagok, motoros, szúnyoghálóval felszerelt. Külső hőszigetelés 10 cm. Igényes, minőségi kivitelezés.

 

Fűtését tekintve hőszivattyús fűtés padlófűtéssel, szobánként külön termosztáttal.

 

Hideg-meleg burkolatok 8000 Ft/m2 árig választhatóak.

 

Kertrendezést az ár tartalmazza, gyepszőnyeg öntözőrendszerrel kerül kialakításra.

Családosok, üdülni vágyók, befektetők figyelmébe ajánlom. 

 

Előzetes egyeztetést követően a hét bármely napján megtekinthető.

 

A képek az elkészült I. ütem ingatlanáról készültek, a meghirdetett ingatlan jelenleg építési fázisban van.
Várható befejezés: 2025. IV. negyedév

 

Irodáink: 
8600 Siófok, Fő tér 6. (Sió Pláza -1. szint) 
8640 Fonyód, Ady Endre u. 5. (Balaton Áruház földszint) 
8638 Balatonlelle, Rákóczi út 276.  
  
Kövess minket Facebook-on is: @citycartelbalaton!

Kapcsolat

Szincsák Eszter

Ingatlanértékesítő

Ossza meg a hirdetést:
FacebookGplusTwitter