|
99.99 millió Ft
|
|
| Alapterület | 108 m2, 820 m2-es telken |
| Szobák száma | 4 szoba |
| Építési mód | Tégla |
| Állapot | Új építésű |
| Emelet | nincs megadva |
További paraméterek
Jó közlekedéssel- Kilátás: Utcára
- Fűtés: Hőszivattyú
- Szintek száma: 1
- Komfort: Dupla komfort
- Akadálymentesítés: Akadálymentesített
Részletes leírás
Új építésű családi ház eladó Röszkén!
Új építésű családi ház eladó Röszkén!
Ha nyugodt biztonságos környezetben szeretne élni Szeged közelében akkor ez az újépítésű családi ház tökéletes választás Önnek.
A település új osztásában, a Rákóczi Ferenc utcában épül. Az ingatlan minden részlete gondosan megtervezett modern stílusban, magas minőségű anyagok felhasználásával valósul meg, egy otthon azoknak, akik nem kötnek kompromisszumot.
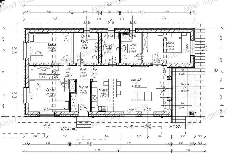
Modern, 108 m2 -es amerikai konyha-nappali, 3 hálószobás otthon nagy terasszal (a helyiségek kialakítása a fotóknál található alaprajz szerint), 820 m2 területű telekkel, ahol van tér pihenni, picit kertészkedni, medence vagy reprezentatív kerti környezet kialakítására, tökéletes helyszín családi pillanatokhoz, vendég fogadáshoz egyaránt.
Téglaépítésű ingatlan, ácsolt tetőszerkezet antracit cseréppel, korszerű hőszivattyús fűtésrendszer padlófűtéssel és fan coil fali fűtéssel, hűtéssel a maximális komfort és energiahatékonyság jegyében.
Impozáns méretű nyílászárók, fényárban úszó életterek, alumínium redőnyök vinil padlóburkolat, a vizes helyiségekben hidegburkolat.
Kulcsra kész átadás 2026 júliusában várható.
Az ingatlan minden részlete úgy lett tervezve, hogy hosszú távon is élhető kényelmes és gazdaságosan fenntartható otthont biztosítson. Barátságos környék könnyű megközelíthetőség, az autópálya is néhány percre. Ideális hely családoknak, minden szociális létesítmény, ami a mindennapunkat megkönnyítheti megtalálható a közelben.
Ismerje meg ezt az exkluzív lehetőséget, hívjon bizalommal!
(A fotók között található néhány referencia fotó egy, már elkészült családi házról.)

