|
79.9 millió Ft
|
|
| Alapterület | 107 m2, 600 m2-es telken |
| Szobák száma | 4 szoba |
| Építési mód | Tégla |
| Állapot | Új építésű |
| Emelet | nincs megadva |
További paraméterek
Otthon Start 3%-os hitellel- Fűtés: Hőszivattyú
- Komfort: Összkomfort
Részletes leírás
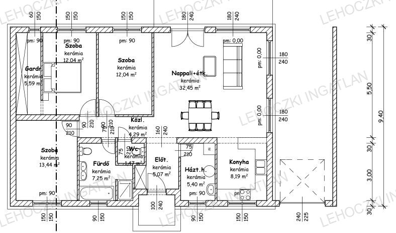
Nyíregyháza-Oros kedvelt részén ÚJ ÉPÍTÉSŰ ÖNÁLLÓ CSALÁDI HÁZ!
Nyíregyháza-Oros kedvelt részén megbízható, komoly, számos referenciával rendelkező kivitelezőtől 107,23 nm-es, nappali - amerikai konyha + 3 szobás ÚJ ÉPÍTÉSŰ ÖNÁLLÓ CSALÁDI HÁZ eladó 600 nm-es telken!
Az ingatlan főbb jellemzői:
Lakótér 107.23 nm + terasz + fedett autóbeálló
Porotherm 30 NF tégla falazat, 15 cm-es homlokzati szigeteléssel ellátva,
Fokozottan hőszigetelt, 3 réteg üvegezésű műanyag nyílászárók,
Födémszerkezete fa födém, 30 cm-es födémhőszigeteléssel,
Tető héjazata Bramac cserépfedés antracit színben,
Fűtése hőszivattyúval megoldott, padlófűtéssel,
3 fázis, H tarifa,
szobákban laminált padló, a többi helyiségben kerámia burkolat,
Kerítés, térkővezés (járda) az árban benne vannak!
Burkolatok, szaniterek, beltéri ajtók még választhatóak értékegyeztetéssel,
Várható átadás:2026. tavasz
Díjmentes hitel, OTTHON START, Babaváró, Biztosítások ügyintézése!
Amennyiben hirdetésem felkeltette az érdeklődését keressen bizalommal! Ügyfeleink számára
minden szolgáltatásunk DÍJMENTES!
Tel:+36 30 579 6521
Lehoczki Mihály Ingatlanközvetítő

