Nyitólap Hirdetésfeladás Kapcsolat
Eladó Családi ház, Magyarkeszi
#725700107
18.5 millió Ft
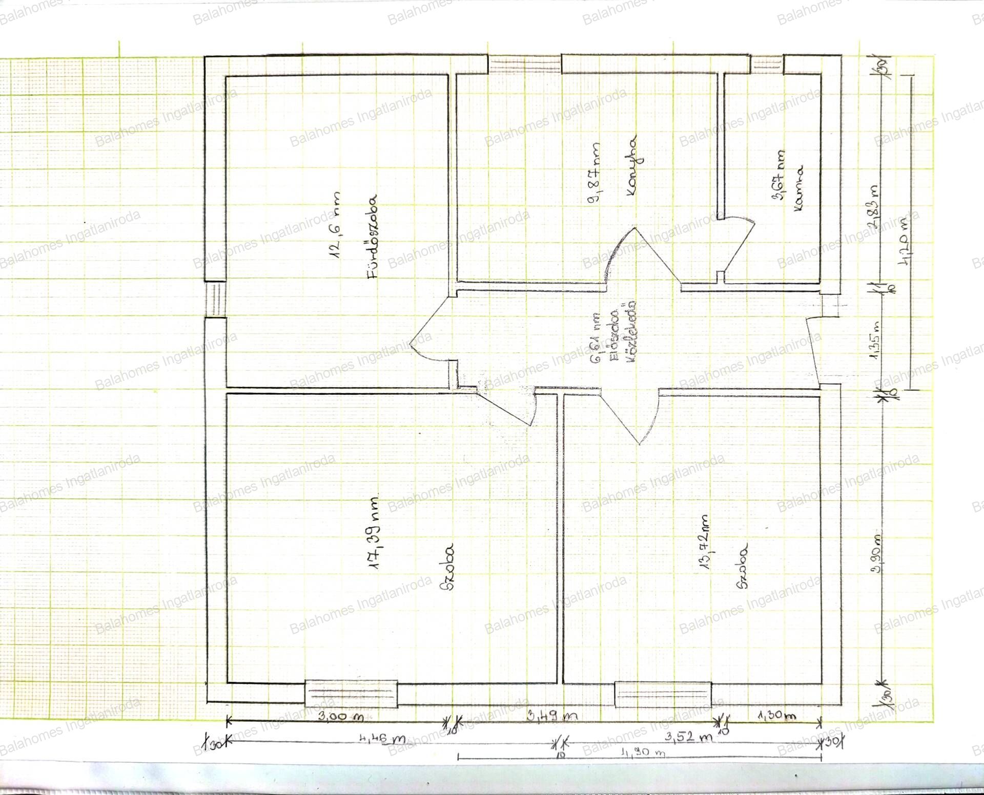
Alapterület 64 m2,  1 669 m2-es telken
Szobák száma 3 szoba + 2 félszoba
Építési mód Tégla
Állapot Átlagos
Emelet nincs megadva

További paraméterek

  • Kertkapcsolatos
  • Kizárólag nálunk
  • Sürgős
  • Fűtés: Konvektor

Részletes leírás

Családiház Magyarkeszin

A BALAHOMES INGATLAN megvásárlásra kínálja a 725700107-es számú 64 m2-es önálló családi házat 1669 m2-es telekkel.

Az ingatlan áll egy nagyobb nappaliból, hálószobából, konyha - étkezőből, előszobából, kamrából és fürdőszobából. Külön kis épületben található a fával fűthető nyári konyha.

A BALAHOMES ingatlaniroda által kínált családi ház jellemzői:

- téglából épült
- jelenleg gázzal fűthető
- a melegvizet gázbojler biztosítja
- fa nyílászárókkal rendelkezik
- a padlásra az épületen kívül lehet feljutni
- víz, villany, gáz bevezetve (csatorna nincs)

A családi ház és a nagy sarok terület adottságainak köszönhetően alkalmas állattartásra, szőlő termesztésre, kertgazdálkodásra és hétvégi vidéki nyugodt pihenésre is. Az 1669 m2 terület minden igényt ki tud elégíteni.

A terület rendezett, gyümölcsfákkal, nagy konyhakerttel, borospincével, tárolókkal rendelkezik. A hangulatos borospince a mai napig használható.

Az ingatlan tehermentes.

Magyarkeszi, Tolna Vámegyében, Tamásitól 20 km-re, Siófoktól – így a Balatontól is - 35 km-re található település. A 65-ös főútról az Iregszemcsénél leágazó mellékúton keresztül érhetjük el. Tita-patak völgyében meghúzódó csendes kis település.

Csendes település napi életét megkönnyíti a helyi kis boltok, benzinkút, gyógyszertár, posta, óvoda, iskola.

Amennyiben a 725700107-es számú a BALAHOMES ingatlan által kínált családi ház, vagy bármely a kínálatunkban található ingatlan felkeltette érdeklődését, hívjon bármikor a megadott telefonszámon.

Vásárolna, de nincs rá keret? Kollégám díjmentes, banksemleges hitelügyintézéssel áll rendelkezésére.

Keresse irodánkat, amennyiben ingatlan értékbecslésre, home staging vagy lakberendezési tanácsadásra, költöztetésre, átalakítási és felújítási munkák végzésére keres megbízható, profi szakembereket.

Balahomes Ingatlan- „Mi elvezetünk az otthonodba!”

Kapcsolat

Grasics Ági

Ingatlanszakértő

Ossza meg a hirdetést:
FacebookGplusTwitter