Nyitólap Hirdetésfeladás Kapcsolat
Eladó Családi ház, Koroncó
#713800122
81.99 millió Ft
Alapterület 81 m2,  1 680 m2-es telken
Szobák száma 4 szoba
Építési mód Tégla
Állapot Új építésű
Emelet nincs megadva

További paraméterek

  • CSOK igényelhető
  • Jó közlekedéssel
  • Kertkapcsolatos
  • Otthon Start 3%-os hitellel
  • Zöldövezeti
  • Kilátás: Udvari
  • Fűtés: Gázkazán
  • Szintek száma: 1
  • Komfort: Összkomfort

Részletes leírás

Koroncón új építésű családi ház nagy telekkel eladó

Koroncón ÚJ építésű ,prémium minőségű családi ház az Ön igényeire szabva eladó

EGYEDI IGÉNYEKET IS FIGYELEMBE VESZÜNK!!!

Koroncó a hely,ahol felépítjük álmai otthonát!

Győrtől DNy-i irányba a 83-as gyorsforgalmi úton megközelítve negyed óra alatt elérhető
Dinamikusan fejlődő, fejlett infrastruktúrával rendelkező település.
Az ingatlan nagyon jó helyen,új építésű családi házak szomszédságában ,csendes környéken épül

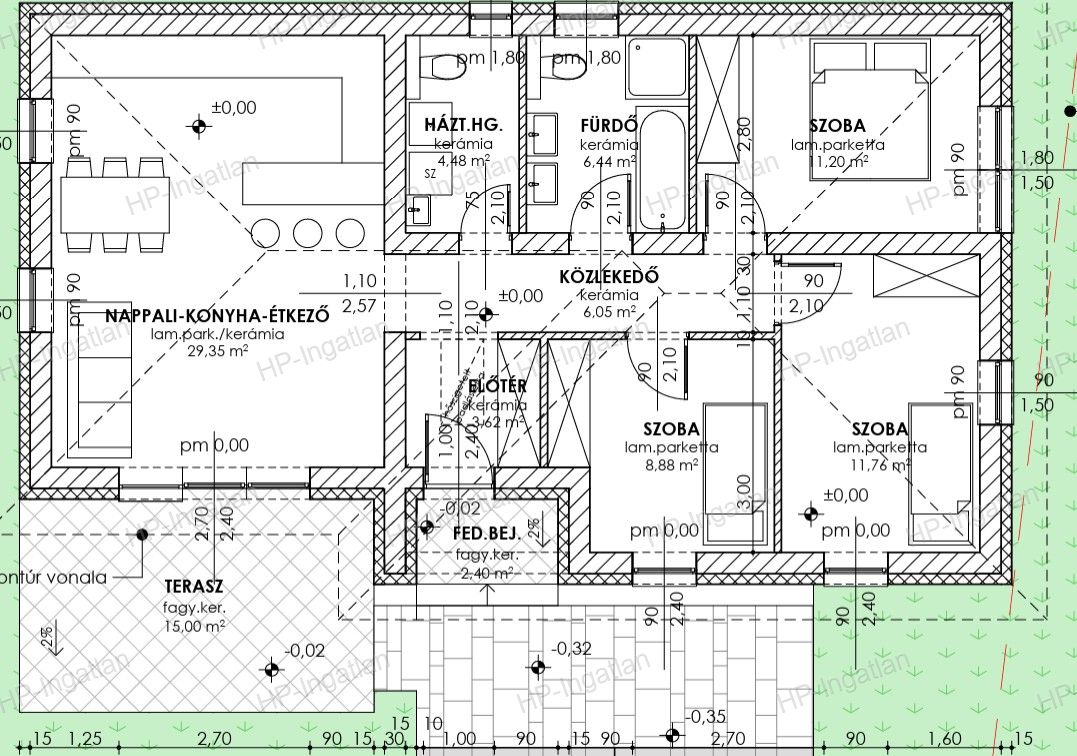
L1  - 81,78 m2 +   15,42 terasz = bruttó 96,78 m2 = bruttó 62.499.000 Ft helyett bruttó  59.999.000 FT

Telek: 1680 m2  bruttó 21.989.000Ft 

A 81,78 nm-es ház helyiségei: amerikai konyhás nappali + 3 hálószoba + fürdő+wc + külön wc +háztartási helyiség +kamra +szélfogó +közlekedő
Az ingatlanhoz 15,42nm terasz és 2,93nm fedett bejáró tartozik


Fontos: A külső közművek (víz, villany , szennyvíz, csapadékvíz elvezetés) biztosítása az épületen kivül az épületen belüli csatlakozási pontig a megrendelő feladata ! Ennek költsége kb. bruttó 2.500.000 Ft ami külön fizetendő


Emelt szintű fűtéskész ár: 81.988.000 FT 5%-os Áfa tartalommal 
Illetékmentes építkezés

Válaszfalak: szabadon mozgathatóak, ha pl nincs szüksége nappali + 4 szobára, a nappali melleti szobába a konyha áthelyezhető így még nagyobb tér lenne a nappaliban.

Egyedi igényeket is figyelembe veszünk!

Nagyobb ház esetén kb  bruttó 700.000 Ft / m2 felárral lehet kalkulálni.

Műszaki adatok.
Külső falak: 30 N+F téglából
A belső válaszfalak 10 N+F téglából
Tetőszeerkezet fafödém
Tetőfedés Bramac Natura cserép/szürke vagy barna/
Külső szigetelés 15cm 
Fűtés padlófűtéssel
Saunier Duval kondenz kazán
Klíma előkészítés

Felár ellenében térkövezve is kérhető
Nyílászárók fehér műanyagból /k=0,6 /
Biztonsági bejárati ajtó

Átadás emelt szintű fűtéskész állapotban 9 hónapon belül


Megbízható kivitelező ! Megtekinthető refencia házak!
Kulcsrakész befejezés egyedi ajánlat alapján


Átadás szerződéskötéstől számított 9 hónapon belül


Bővebb információkért forduljon hozzám bizalommal.
Várom hívását!
Bankfüggetlen és díjmentes hitel és CSOK+ ügyintézés az irodánkban!

Kapcsolat

Hannichné Szénhegyi Gertrúd

Irodavezető

Ossza meg a hirdetést:
FacebookGplusTwitter