Nyitólap Hirdetésfeladás Kapcsolat
Eladó Családi ház, Kocs
#692000637
42 millió Ft
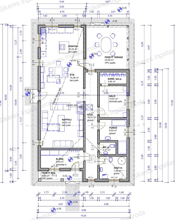
Alapterület 151 m2,  1 744 m2-es telken
Szobák száma 3 szoba
Építési mód Könnyűszerkezetes
Állapot Építés alatt
Emelet nincs megadva

További paraméterek

  • Kilátás: Udvari
  • Fűtés: Hőszivattyú
  • Bútorozottság: Bútorozatlan
  • Szintek száma: 1
  • Komfort: Összkomfort

Részletes leírás

Eladó befejezetlen családi ház, nagy telekkel Kocson – alakítsa saját igényeire!

Kocs nyugodt, kertvárosias részén, rendezett családi házas övezetben kínálunk megvételre egy 151 négyzetméteres, könnyűszerkezetes családi házat, amely egy 1744 négyzetméteres, sík, jól kihasználható telken fekszik.

 

Az eladó családi ház jelenlegi készültségi foka 41%, így ideális választás azok számára, akik egy már előkészített szerkezetből saját elképzeléseik szerint szeretnének otthont kialakítani – kompromisszumok nélkül, saját ízlésük szerint.

Az eladó ház megtervezésénél a funkcionalitás és a tágas terek voltak a fő szempontok. A belső elrendezés praktikus: a tágas előszobából és közlekedőből jól elkülönülnek a nappali élettér és a hálózóna.

A nappali, étkező és konyha egy légtérben helyezkedik el, mégis jól tagolt, természetes fényben bővelkedő helyiségeket alkotva.

A hálószobához külön gardrób tartozik, a háztartási helyiség és a különálló WC pedig növeli a kényelmet.

A ház hátsó részén fedett terasz biztosítja a kellemes kinti időtöltést, amely a nagy méretű teleknek köszönhetően akár kerti pihenővel vagy játszótérrel is kiegészíthető.

 

Az eladó családi ház műszaki alapjai megbízhatóak: sávalapozással, vasbeton fejgerendával és vasalt betonaljzattal készült.

A könnyűszerkezetes falszerkezet 10/15-ös fa vázból áll, amelyet 12 cm-es hőszigetelés egészít ki, így a végleges ház energiatakarékos, fenntartható otthonná válhat.

A padlózat alatt AUSTROTHERM hőszigetelés került beépítésre.

A fűtés korszerű hőszivattyús rendszerre lett előkészítve, amely garantálja a modern, gazdaságos üzemeltetést.

 

Az eladó családi ház elhelyezkedése rendkívül kedvező: a közelben megtalálhatóak a mindennapi élethez szükséges intézmények – óvoda, iskola, élelmiszerbolt és buszmegálló is könnyen elérhető.

Kocs Tata és Komárom között helyezkedik el, az M1 autópálya közelsége pedig kényelmes közlekedést biztosít akár Budapest, akár Győr irányába.

 

Ez az ingatlan ideális választás lehet mindazoknak, akik szeretnének egy tágas, nyugodt környezetben elhelyezkedő, mégis jól megközelíthető családi házban élni, amelyet saját elképzeléseik szerint fejezhetnek be.

 

Adatbázisunkban számos eladó-kiadó ingatlan közül választhat.
Személyre szabott ügyintézéssel, ügyvédi háttérrel állunk ügyfeleink rendelkezésére.
15 éves értékesítői és vezetői tapasztalat.
Minden egy helyen, az ingatlan bemutatásától a kulcsátadásig!
Hitelminősítés a Fő téri irodánkban a hét minden napján.
Legyen közös a sikerünk!

Kapcsolat

Konkoly Zsuzsa

Ingatlanértékesítő

Ossza meg a hirdetést:
FacebookGplusTwitter