|
45 millió Ft
|
|
| Alapterület | 72 m2 |
| Szobák száma | 3 szoba |
| Építési mód | Tégla |
| Állapot | Átlagos |
| Emelet | nincs megadva |
További paraméterek
CSOK igényelhető
Otthon Start 3%-os hitellel- Fűtés: Gázkazán
- Szintek száma: 2
- Komfort: Összkomfort
Részletes leírás
Kazincbarcikán, a Vasút úton eladó egy hangulatos, modernizált ikerház
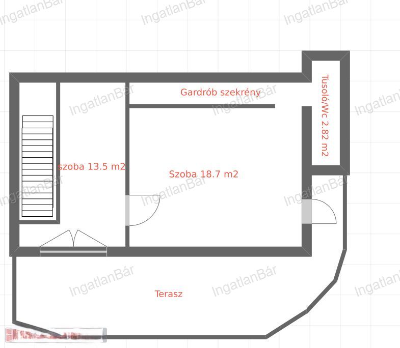
Kazincbarcika csendes részén, a Vasút úton kínálunk eladásra egy 72 m²-es, tégla építésű, 2003-ban teljeskörűen átépített és modernizált ikerházat, tetőtér-beépítéssel.
Az alsó szinten tágas nappali, konyha-étkező és fürdőszoba található, míg a tetőtérben két szoba, tusolós fürdő wc-vel és egy kellemes, kertre néző terasz kapott helyet. A ház praktikus elrendezése ideális családok, fiatal párok vagy akár befektetők számára is.
A konyha, nappali és a tetőtéri szobák magas minőségű, vízálló laminált parkettával burkoltak, a fürdők pedig járólappal. A hőszigetelt műanyag nyílászárók és a fa bejárati ajtó nemcsak esztétikusak, hanem energiatakarékos megoldást is kínálnak.
A fűtésről modern kombi cirkó gázkazán gondoskodik, de a régi típusú kazán is használható. A szobákban radiátoros fűtés, a konyhában és fürdőkben pedig kényelmes padlófűtés biztosítja az otthon melegét.
A konyhabútor a beépített gépészettel és páraelszívóval a vételár része, igény esetén a teljes bútorzat is maradhat. Az ingatlan alatt pince húzódik, ahol a kazánok kaptak helyet.
Az udvar gondosan ápolt, dísznövényekkel beültetett, öntözőrendszerrel ellátott pázsitos kerttel várja új tulajdonosát. A mélyre fúrt kút nemcsak locsoláshoz ideális, hanem talajhő-víz szivattyú üzemeltetésére is előkészített.
További lehetőséget kínál, hogy a közös portán elhelyezkedő, jelenleg is működő Bakterház Panzió szintén eladó 65 millió forintos irányáron. A panzió három kétszemélyes és egy négyszemélyes szobával, valamint tágas közösségi térrel rendelkezik, így akár vállalkozás és magánélet is kényelmesen kombinálható egy helyen.
Ha egy kényelmes, ízlésesen felújított, azonnal költözhető otthont keres Kazincbarcikán, ez az ingatlan kiváló választás.
Teljeskörű banki ügyintézést és ügyvédi hátteret biztosítunk a vásárláshoz.

