Nyitólap Hirdetésfeladás Kapcsolat
Eladó Családi ház, Hatvan
#386893
58 millió Ft
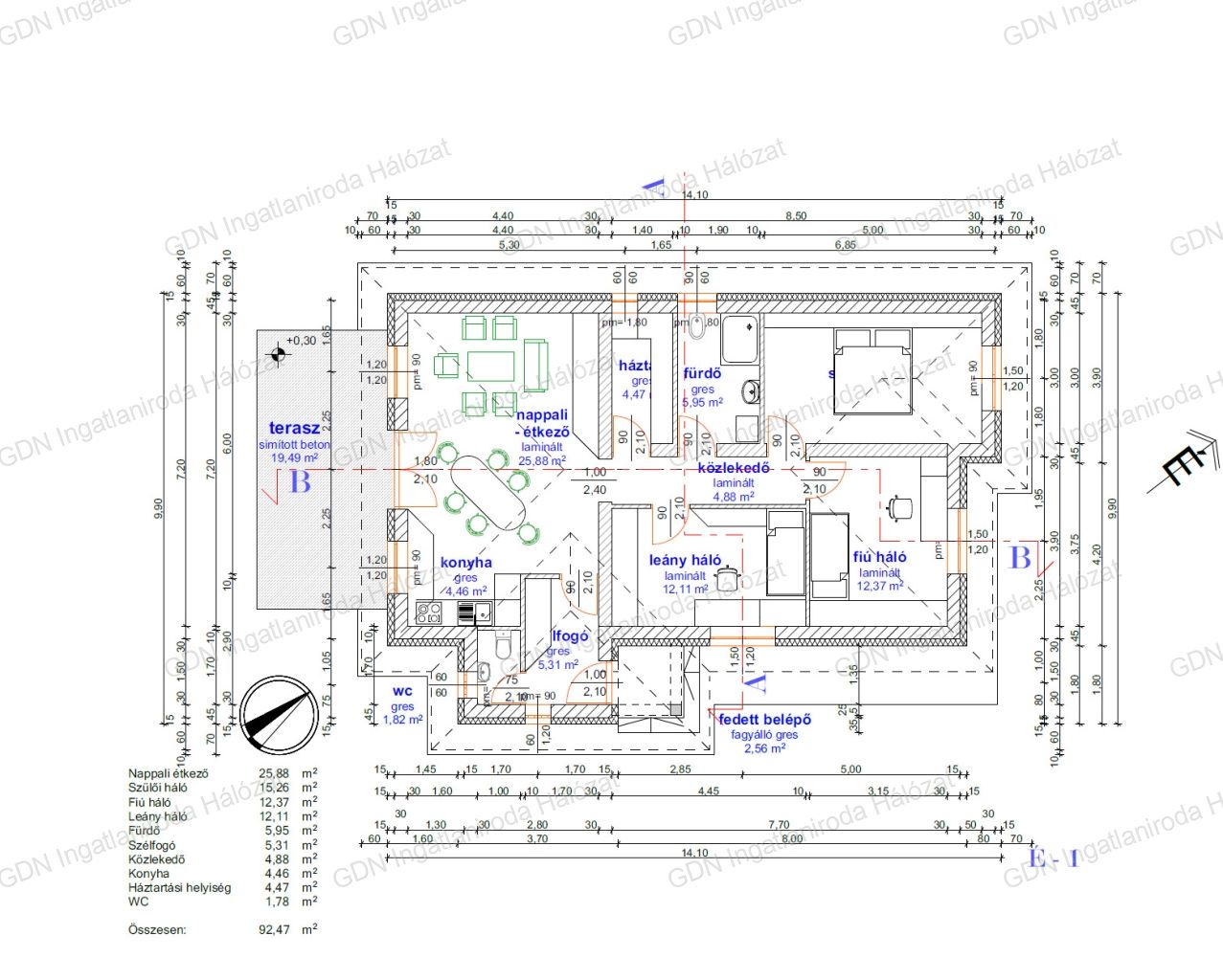
Alapterület 93 m2,  1 197 m2-es telken
Szobák száma 4 szoba
Építési mód nincs megadva
Állapot Új építésű
Emelet nincs megadva

További paraméterek

  • Kilátás: Kertre néző
  • Komfort: Összkomfort

Részletes leírás

Hatvanban a Hegytető utcában , 1197 m2-es telken, újonnan épülő nettó 92,47 m2 hasznos lakótérrel rendelkező családi ház eladó. Az ingatlan 30-as Nútféderes tégla falazóelemből épül, fa födémmel. A tető héjazata antracit betoncserép lesz, a homlokzatok 15cm EPS, a padló 10cm Austrotherm AT-N100-as, a vízszintes födém 25cm Ásványgyapot szigeteléssel lesz ellátva. Hat légkamrás 3 rétegű evegekkel szerelt nyílászárók kerülnek beépítésre. A fűtést és a melegvíz ellátást monoblockos hőszivattyús rendszer fogja ellátni, padlófűtéssel. (10kw) A műszaki tartalom választható az alábbi költségkereten belül: -hidegburkolat:3000.- Ft./m2-ig. -melegburkolat:3000.- Ft./m2-ig -csaptelepek:15.000.- Ft./db -kád vagy zuhany: 40.000.- Ft. -beltéri ajtók:35.000.- Ft./db -Wc Falsík mögötti rendszer Elektromos kiépítés: -Konnektorok szobákban: 3 db -Konnektorok nappaliban 4db + internet és kábeltv kiállás -Konnektorok konyhában: 6db -Világítás helyiségenként 1-1 db -Kábeltévé: Előkészítés Magasabb árú tatalom is választható a különbség finanszírozásával. Riasztó előkészítés és kapu mozgató elektronika előkészítés is készül. Kérésre szívesen küldünk komplett tervdokumentációt, műszaki leírást. Várható átadás 2026 második negyedév. INGYENES hitel tanácsadás, CSOK Plusz ügyintézés! BANKFÜGGETLEN hitelcentrumunk az összes elérhető bank és hitelintézet ajánlatát versenyezteti az Ön kedvéért, ráadásul DÍJMENTESEN. - Egyedi, bankfiókban nem elérhető kamat- és díjkedvezmények - Hitelképesség vizsgálat - Idő, energia és pénz megtakarítás - Teljes hivatali ügyintézés Amennyiben hirdetésem felkeltette az érdeklődését vagy egyéb információra van szüksége hívjon bizalommal!

Kapcsolat

Horváth Péter

Ossza meg a hirdetést:
FacebookGplusTwitter