| 
                                 
99.9 millió Ft                                 
                             | 
                        |
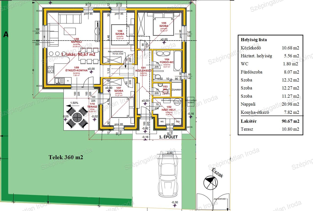
| Alapterület | 91 m2, 360 m2-es telken | 
| Szobák száma | nincs megadva | 
| Építési mód | Tégla | 
| Állapot | Új építésű | 
| Emelet | nincs megadva | 
További paraméterek
Kertkapcsolatos
Részletes leírás
Új építésű családi ház parkosított udvarral.
A Szépingatlan Iroda kínálatában Harkán, az Alpesi lakóparkban, 360 m2-es telken, új építésű, 1 szintes, önálló családi ház, terasszal, autóbeállóval 2026 nyári átadással leköthető. A belső elrendezésben amerikai konyha-nappali, 3 hálószoba, fürdőszoba, háztartási helyiség és WC található, valamint az autóbeálló, mely közvetlen bejáratos a ház lakóterébe. Az ingatlan tégla építésű, külső 12 cm-es homlokzatszigeteléssel, 3 rétegű hőszigetelt üvegezésű nyílászárókkal, minőségi, választható belső burkolatokkal készül. A fűtést és a meleg vizet gáz-cirkó kazán szolgáltatja a ház energia ellátását, helyiségenként szabályozható padlófűtéssel. Az épület a következő extrákkal kerül kulcsrakész átadásra: elektromos redőny, klíma, térkövezett autóbeálló és járda, tereprendezés parkosítással, esővíz elvezetés, kerti csap, telek körbekerítése. Az épületről látványterv készült, mely kismértékben még módosítható. Babaváró hitel, a CSOK Plusz kombinációja és az ezekkel járó állami támogatott hitel, illetékmentesség, igénybe vehetők! Irodánk független banki hitelügyintézővel, teljes körű ügyintézéssel áll az Ügyfelek rendelkezésére. A kulcsrakész ár 99,9 mFt. Tervezett átadás 2026 július-augusztus. Érd.: +3630 520 6055, [email protected]
