Nyitólap Hirdetésfeladás Kapcsolat
Eladó Családi ház, Gógánfa
#719300183
13.5 millió Ft
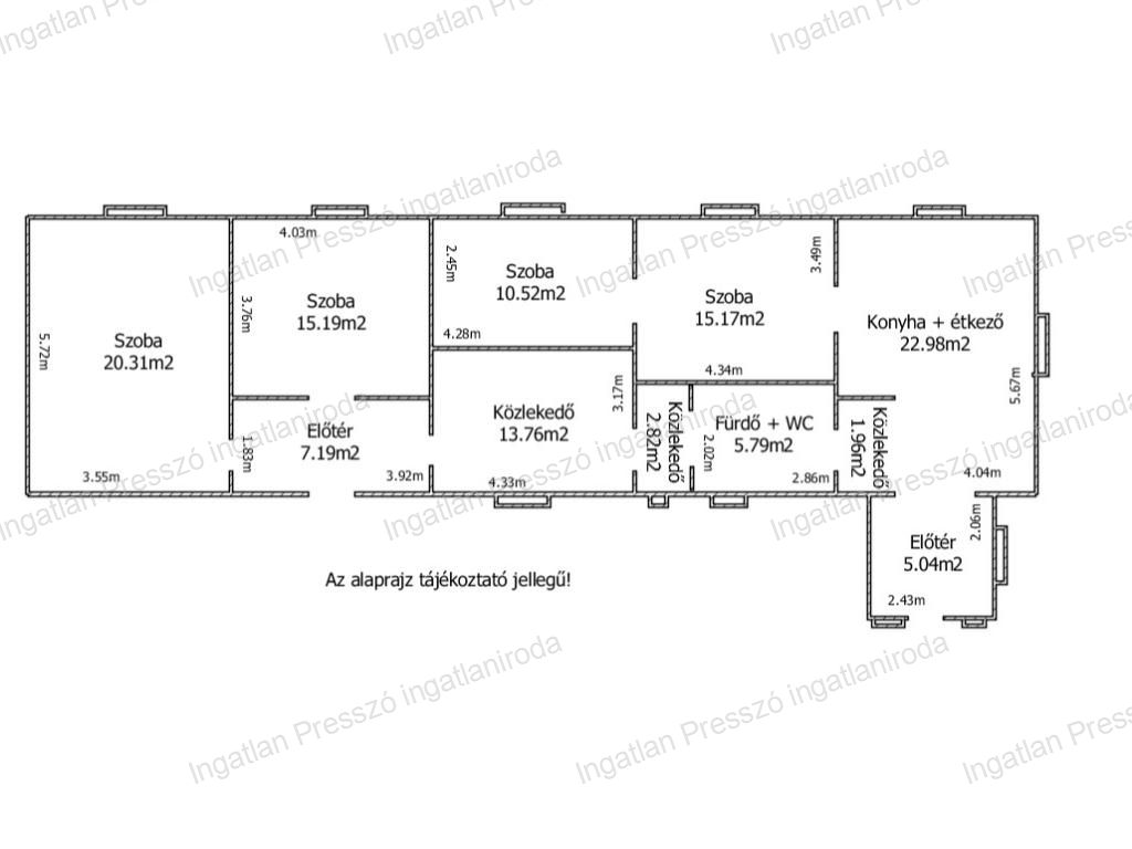
Alapterület 121 m2,  868 m2-es telken
Szobák száma 4 szoba
Építési mód Tégla
Állapot Felújítandó
Emelet nincs megadva

További paraméterek

  • Jó közlekedéssel
  • Kertkapcsolatos
  • Zöldövezeti
  • Kilátás: Utcára
  • Fűtés: Kandalló
  • Szintek száma: 1
  • Komfort: Összkomfort

Részletes leírás

Eladó 4 szobás családi ház Gógánfán a központban!

Az Ingatlan Presszó eladásra kínál felújítandó, de szerkezetileg jó állapotú családi házat Gógánfán.

Az Ingatlan Presszó által kínált gógánfai 4 szobás családi ház jellemzői:

 

- a 121 m2-es ingatlan 868 m2-es telken helyezkedik el

- felújítandó állapotú
- falazata kő és tégla
- tetőfedése pala, szerkezete még jó
- 4 szoba, egy fürdőszoba káddal és wc-vel, előtér, közlekedő, és egy amerikai konyhás nappali található még a házban

- központi fűtéses vízteres kandallóval lapradiátorokon keresztűl adja le a hőt, és egy klíma is van felszerelve
- melegvizet villany bojler szolgáltatja

- közművek: víz-, villany-, csatorna bekötve, gáz a ház előtt
- az ablakok egy rétegű hang és hőszigetelt

- az ingatlan 2 bejáratos, garázs nincs, parkolás utcán, vagy az udvarban is lehetséges
- az udvaron egy ásótt kút is megtalálható, benne vizzel
- központban helyezkedik el pár percre mindentől (általános iskola, óvoda, bolt, posta, önkormányzat, orvosi rendelő, buszmegálló)
- optikai internet kábel beköthető

- családias, zöld övezetes környék

 

- Itt Gógánfán általános iskola alsó tagozat, orvosi-, védőnői rendelő, óvoda,  buszmegálló, vasút állomás, falu gondnokság, bolt, és posta is megtalálható. Sümegen (9 km-re) bölcsőde, általános iskolák, és gimnázium is megtalálható. Dabroncon (2 km-re) bölcsöde, általános iskola felső tagozat (tornateremmel), önkormányzat, faluház, könyvtár, orvosi rendelő, bolt, posta, vasút állomás(autó-, kerékpár parkolóval), buszmegálló található.

 

Amennyiben az Ingatlan Presszó által kínált családi ház, vagy bármely kínálatunkban található ingatlan felkeltette érdeklődését, hívjon bizalommal a megadott telefonszámon.

 

Irodánk szakember ajánlásai igény esetén: ügyvéd, energetikai tanúsítvány, hitelügyintézés, értékbecslés, statikus, földmérő, építészmérnök, belsőépítész, villanyszerelő, víz-, gáz-, központi fűtés szerelő, kőműves, burkoló...

Továbbiakban keresek eladó vagy kiadó családi házat-, lakást-, nyaralót-, gazdasági épületet-, raktárt-, csarnokot,- telephelyet,- építési telket-, zártkertet-, külterületet-, szántót-, legelőt-, erdőt, akár még tulajdoni hányadot is ügyfeleim részére, Veszprém vármegyében, Sümeg- és Tapolca környékén, valamint Balaton-felvidéken, Káli-medencében, Művészetek Völgyében, Balatonederics-Zánka között.

Köszönettel,
Bódis Péter
ingatlanértékesítő

Ingatlan Presszó
Térjen be hozzánk egy ingatlanra!

Kapcsolat

Bódis Péter

Irodavezető

Ossza meg a hirdetést:
FacebookGplusTwitter