Nyitólap Hirdetésfeladás Kapcsolat
Eladó Családi ház, Dabas, Sári
#674400237
98 millió Ft
Alapterület 280 m2,  1 158 m2-es telken
Szobák száma 5 szoba
Építési mód Tégla
Állapot
Emelet nincs megadva

További paraméterek

  • Jó közlekedéssel
  • Kertkapcsolatos
  • Kirakatba
  • Posta a közelben
  • Kilátás: Vegyes
  • Fűtés: Gázkazán
  • Bútorozottság: Részben bútorozott
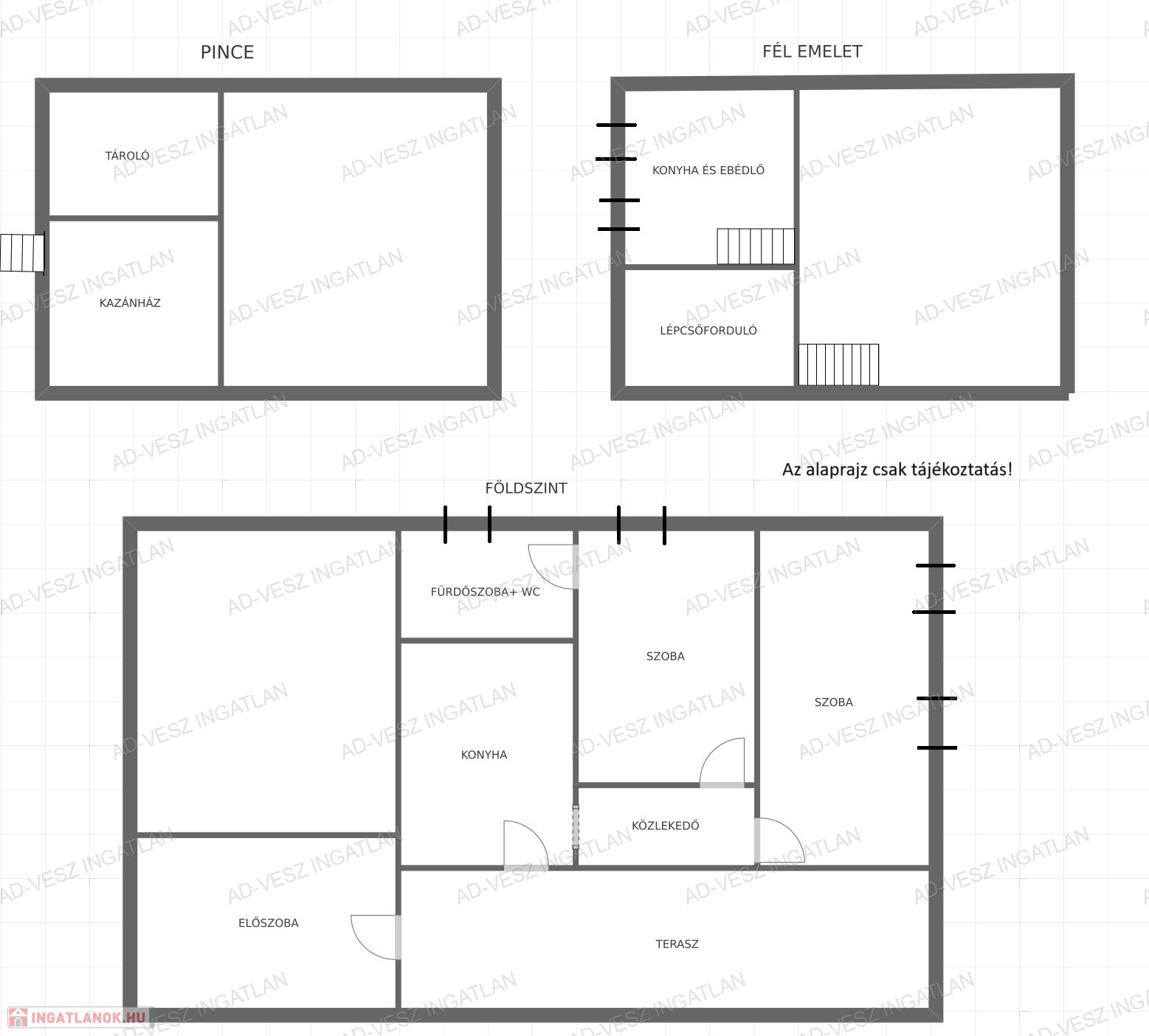
  • Szintek száma: 3
  • Komfort: Dupla komfort
  • Energetika: H
  • Internet: Optikai
  • Akadálymentesítés: Nem akadálymentesített

Részletes leírás

Eladó kétgenerációs családi ház nagy telekkel, csendes környéken

Eladó kétgenerációs családi ház! 

 

Budapesttől elérhető közelségben, jó környéken kínálunk megvételre egy 1993-ban épült, 1158m²-es telken álló, 2 külön bejáratú lakrésszel rendelkező családi házat.

 

Alsó szint (külön bejárattal, befejezést igényel):

- 2 szoba, konyha, fürdő+WC

- belső befejezést igényel (burkolatok, fürdőszoba)

- ideális kiadásra, vendégeknek vagy többgenerációs családnak

 

Felső szint (szinteltolásos, felújított):

- tágas előszoba

- nagy konyha + étkező

- nappali

- 2 hálószoba + dolgozósarok

- fürdő és külön WC

- legfelső szinten egy különálló, nagy hálószoba

- teljes felújításon esett át (nyílászárók kivételével)

 

Műszaki adatok:

- beton alap, tégla falazat, cseréptető

- közművesített ingatlan

- nyílászárók: hőszigetelt fa és részben műanyag (cseréjük folyamatban van)

- padlózat: laminált padló és járólap

- fűtés: központi gáz, klíma, konvektor és infra panel 

 

 

Telek adottságai:

- két utcáról bejárható

- nagy kocsibeálló + fedett parkoló

- medence helye már kibetonozva

- fúrt kút

- pince kb. 30m²

- gyümölcsfák, tyúkól, állattartásra is alkalmas

 

Előnyök:

- két különálló lakrész → több generációnak vagy befektetésnek is ideális

- csendes, fiatalos szomszédság, barátságos közeg, jó infrastruktúra és közlekedés

 

Ha egy tágas, sok lehetőséget kínáló ingatlant keres családja vagy befektetés céljára, akkor ne hagyja ki ezt a lehetőséget, keressen bizalommal, akár hétvégén is!

 

Hefler Réka

Ad- Vesz Ingatlaniroda

+3670-617-2607

Kapcsolat

Hefler Réka

Ossza meg a hirdetést:
FacebookGplusTwitter