Nyitólap Hirdetésfeladás Kapcsolat
Eladó Családi ház, Budapest, XXI. kerület
#107004151
199 millió Ft
Alapterület 174 m2,  544 m2-es telken
Szobák száma 5 szoba
Építési mód Tégla
Állapot Új építésű
Emelet nincs megadva

További paraméterek

  • Kertkapcsolatos
  • Fűtés: Hőszivattyú
  • Komfort: Luxus
  • Energetika: A+++
  • Internet: Optikai

Részletes leírás

Csepel Királyerdei részén új építésű, hőszivattyús luxus családi ház eladó!

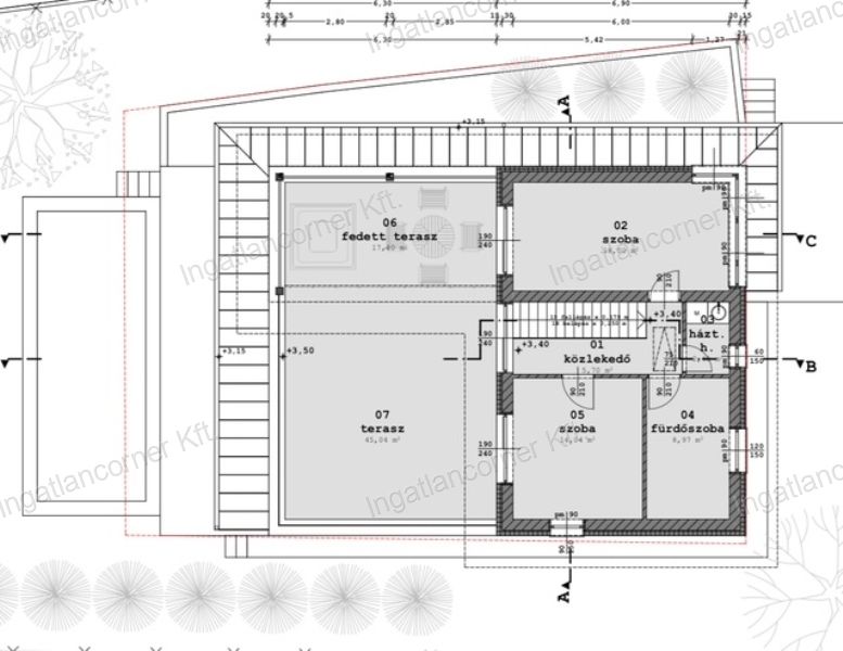
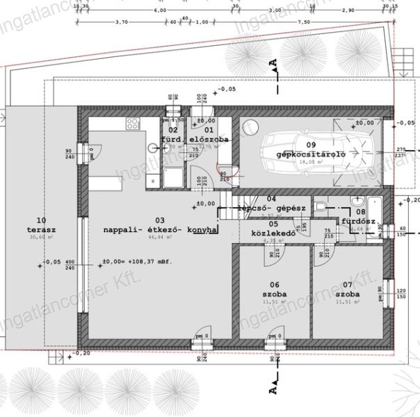
Eladó Csepel Királyerdő részén egy 544 m2 telekkel rendelkező, nettó 174 m2-es, belső kétszintes, nappali + 4 hálószobás, 3-fürdőszobás, nagy terasszal, jakuzzi előkészítéssel, garázzsal rendelkező (+18 m2), 3x8m-es kültéri medencével, napelemmel (7kw-ig az árban, bővíthető), hőszivattyús fűtésrendszerrel kialakított luxus családi ház. 
Államilag támogatott 3%-os hitel felvehető 150 M Ft-ig!

Az alsó szinten egy amerikai konyhás nappali, 2db hálószoba, vendég WC, 2db fürdőszoba (az egyik zuhanyzós, a másik kádas kivitelben), nyitott terasz 31 m2, garázs 18 m2, az emeleti részen közlekedő, 2db hálószoba, 1db fürdőszoba, háztartási helyiség, fedett terasz 17 m2 és egy nyitott terasz 45 m2 kerül, kialakításra.

Műszaki tartalom:
•    30-as Porotherm falazat
•    15 cm-es homlokzati szigetelés
•    30 cm-es födémszigetelés
•    Hőszivattyúról működő víz-levegős hűtés-fűtés, padlófűtés, mennyezeti hűtés, H-tarifa
•    Friss levegőszellőztető rendszer
•    3-rétegű nyílászárók, antracit színű, elektromos alumínium redőnyök
•    Hideg burkolat br. 9 500 Ft/m2, meleg burkolat br. 7 500 Ft/m2  az árban
•     Design ledvilágítás a fürdőszobákban, a teraszon, a medencénél
•    Antracit színű betoncserép
•    3 x 8m-es kerti medence, gépészettel
•    Jakuzzi kiállás előkészítés
•    Napelem rendszer 7 Kw-ig (opcionálisan kérésre bővíthető)
•    Garázs 18 m2, térkövezett gépkocsi beálló
•    Elektromos garázskapu
•    WPC kerítés

A műszaki tartalom igény esetén opcionálisan bővíthető, a kivitelezővel történt egyeztetéssel.
A környék csöndes, rendezett, a közelben minden megtalálható, amire szükség lehet. Pár perc sétára található a szépen felújított csepeli strand!

Várom hívását, NE maradjon le róla!

Irodánk ügyvédi háttérrel rendelkezik a szerződés zökkenőmentes lebonyolítását illetően, illetve hitelhez hiteltanácsadóink révén segítséget nyújt!

Kapcsolat

Aranyosi Tamás

Ossza meg a hirdetést:
FacebookGplusTwitter