Nyitólap Hirdetésfeladás Kapcsolat
Eladó Családi ház, Bőny
#725400059
65.8 millió Ft
Alapterület 81 m2,  250 m2-es telken
Szobák száma nincs megadva
Építési mód Tégla
Állapot Új építésű
Emelet nincs megadva

További paraméterek

  • CSOK igényelhető
  • Jó Befektetés
  • Jó közlekedéssel
  • Kertkapcsolatos
  • Klímás
  • Otthon Start 3%-os hitellel
  • Zöldövezeti

Részletes leírás

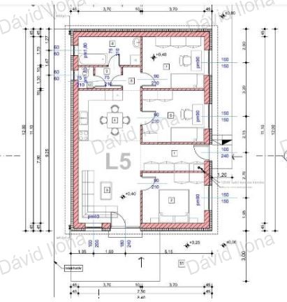
Bőnyön kulcsrakész új családi ház eladó Nappali + 3 szoba elosztás, 80,53 m²

 Új otthon Bőnyön – Győrtől mindössze 15 percre!

Egy nagyobb telken 5 modern sorház került kialakításra, amelyek közül most a nappali + 3 hálószobás, 80,53 m²-es lakóegységet kínáljuk saját telekrésszel.

Tégla falazat, szigetelt épület

 Főbb jellemzők:

kb. 250 m² önálló kertrész, ahol tényleg otthon érezheted magad

16 m²-es térkövezett terasz, a nyári esték kedvence

Betonozott gépkocsibeálló

Modern 3D kerítés tolókapuval – biztonság és stílus egyszerre

Klíma a nappaliban, az ár részét képezi

 

Ha bármilyen kérdésed van, vagy időpontot szeretnél egyeztetni, keress bátran!

Akàr hétvégén is.

 

Kapcsolat

Varga Norbert

+36 20 771-1077
norbi.otthonter@gmail.com
Ossza meg a hirdetést:
FacebookGplusTwitter