|
139 millió Ft
|
|
| Alapterület | 216 m2, 1 211 m2-es telken |
| Szobák száma | 3 szoba |
| Építési mód | Tégla |
| Állapot | Építés alatt |
| Emelet | nincs megadva |
További paraméterek
Jó közlekedéssel
Zöldövezeti- Kilátás: Részpanoráma
- Fűtés: Hőszivattyú
- Bútorozottság: Bútorozatlan
- Szintek száma: 2
- Komfort: Összkomfort
- Akadálymentesítés: Nem akadálymentesített
Részletes leírás
Újépítésű, zöldpanorámás családi ház kulcsrakészen - Bocfölde csendes mellékutcájában
Modern, energiahatékony és igényes kivitelezésű otthon, amely 2026 júniusától költözhető, és a zalai dombság lenyűgöző panorámáját kínálja.
A környék rendezett, igényes házakkal beépített, kiváló lakókörnyezet - pár percre Zalaegerszegtől.
Műszaki tartalom
30 cm-es tégla falazat + 10 cm homlokzati hőszigetelés
Cseréptető
3 rétegű, 6 légkamrás prémium külső nyílászárók
Több ponton záródó biztonsági bejárati ajtó
30 cm kőzetgyapot szigetelés a födémen
Hőszivattyús padlófűtés – alacsony rezsi, modern technológia
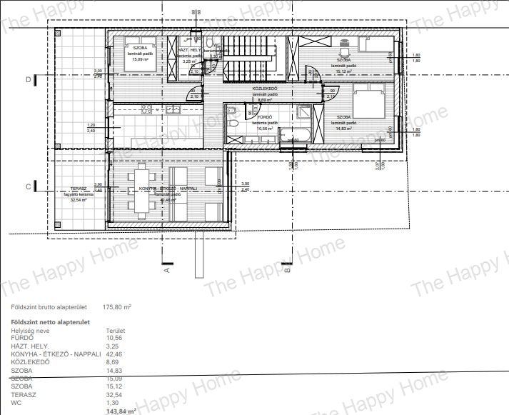
Földszint
3 hálószoba
Amerikai konyhás nappali 42 m²-en - a családi rendezvények színhelye
Fürdőszoba
Külön WC
Háztartási helyiség
35 m²-es terasz páratlan kilátással a zalai dombságra
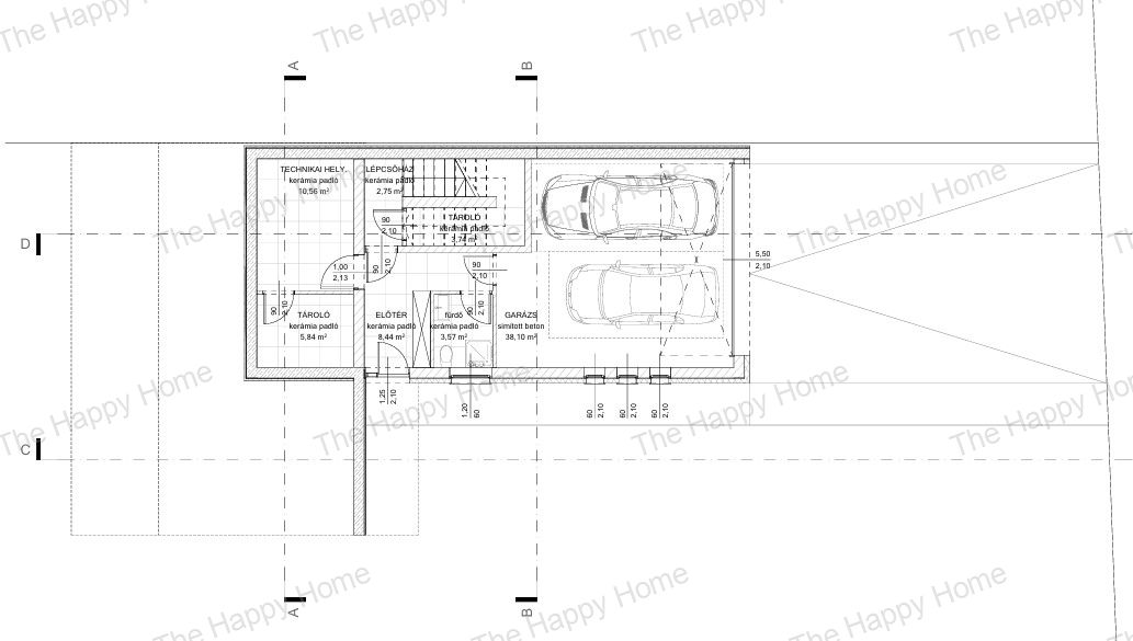
Pinceszint
Tágas dupla garázs
Kazánház
Több tárolóhelyiség
Fürdő/WC
Főbb adatok:
Telekméret: 1211 m²
Bruttó alapterület: 275 m²
Nettó alapterület: 216 m²
Fűtött lakótér: 146 m²
A burkolatok,falszínek választhatók, így saját stílusodra formálhatod az otthon végső megjelenését!
Ár: 139.000.000 Ft – kulcsrakész állapot!
Ez az ingatlan ideális választás azoknak, akik természetközeli, rendezett környezetben keresnek modern, időtálló otthont – mégis könnyű elérhetőséggel Zalaegerszeghez.
Ha szeretnéd megtekinteni, vagy további információra van szükséged, írj bátran!

