Nyitólap Hirdetésfeladás Kapcsolat
Eladó Családi ház, Békésszentandrás
#714400060
24.9 millió Ft
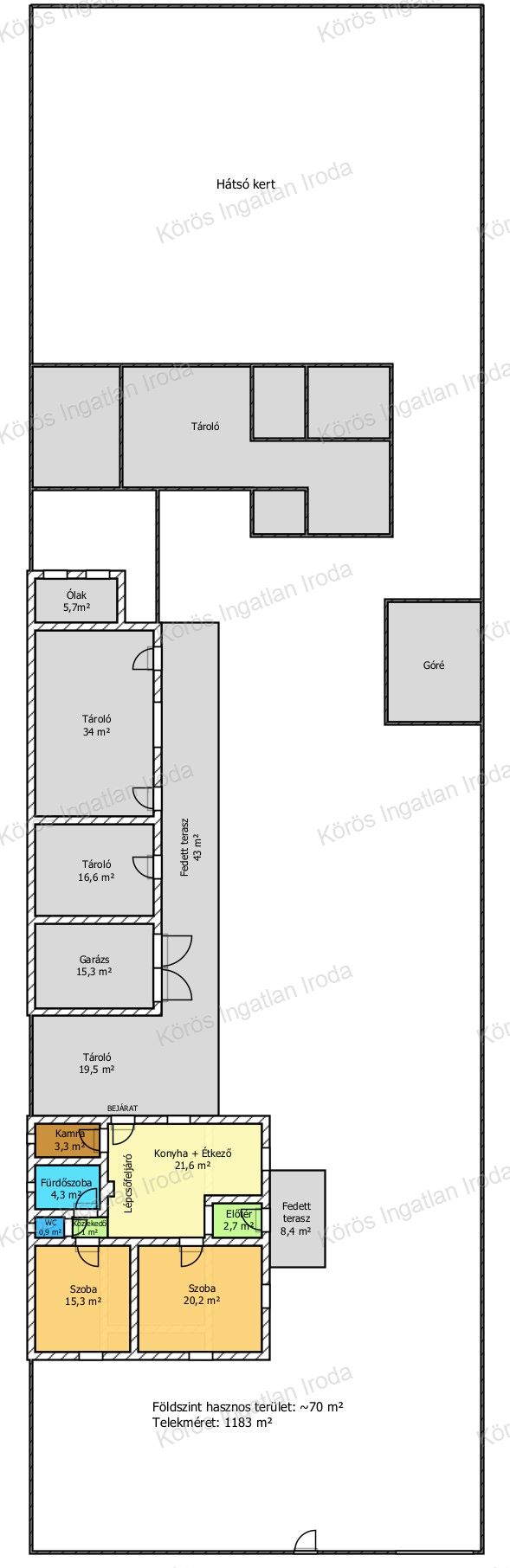
Alapterület 80 m2,  1 183 m2-es telken
Szobák száma 3 szoba
Építési mód Tégla
Állapot Átlagos
Emelet nincs megadva

További paraméterek

  • CSOK igényelhető
  • Jó közlekedéssel
  • Kertkapcsolatos
  • Otthon Start 3%-os hitellel
  • Zöldövezeti
  • Kilátás: Vegyes
  • Fűtés: Cirkó
  • Bútorozottság: Részben bútorozott
  • Komfort: Összkomfort
  • Energetika: H

Részletes leírás

Békésszentandráson családi ház eladó!

Békésszentandráson üdülősorhoz vezető úton, tetőtérbeépítéses családi ház eladó! Aszfaltozott út mellett, közel a központhoz, mégis kertvárosias környezetben helyezkedik el. 

Az ingatlan 1980-as év végén épült, kiemelt alapzatra B-30-as tégla falazattal.

Alsó szintje hasznos alapterülete ~70m2, normál méretű. A főbejárathoz 9m2-es fedett teraszon keresztül lépünk be. Az előszobából balra 2 külön bejáratú utcára néző, parkettás szoba található, melynek ablakai nyugatra néznek. A folyosó végén mosdó, helyiség, és tusolós fürdőszoba került kialakításra. A konyha-étkező-folyosó egy légtérben, modern stílusban funkcionál,  ezért tágas, világos, otthonos érzetet nyújt. A házközponti fűtést fatüzeléses vízteres kandalló biztosítja radiátoros hőleadókkal, mely az alsó szint közepén az étkezőben található.. Másodlagos fűtés biztosítása gázkonvektorokkal megoldott. 

Felső szint kialakítása elkezdődött, két szélén a sufni leválasztás, és a mennyezet szigetelése, parketta fedéssel elkészült. A fenti szoba 29m2 hasznos alapterülettel rendelkezik,a hozzá tartozó emeleti erkély 2,3m2.. 

Az ingatlanban beveztett nappali áram 3x16A, a vezérelt áram 3x25A.

A gazdasági részt és a főépületet  ~20m2 -es fedett rész köti össze, jeenleg fatárolóként hasznosítják. A melléképület első helyisége garázs, második tároló, harmadik műhelyként funkcionál. Minden helyiség árammal ellátott, betonozott. 

Bontásra váró ,,tákolmány válassza el térben a kertet. Itt konyhakerti növények, gyümölcsfák sokasága ontja termését. Locsolásukról fúrt kút gondoskodik. 

Az előkertes családi házhoz tartozó telek nagysága 1183nm.

Az ingatlan per, teher, igény mentes!  

Az ingatlanról, a hirdetésekben szereplő információk a megbízótól kapott adatok alapján készítettük, irodánk azokért felelősséget nem vállal!

 Békésszentandrás 3500 fővel rendelkező, magyar lakta település. Szarvastól 5km-re található. Többszáz közvetlen vízparttal rendelkező hétvégi ház virágoztatja fel az idegenforgalmat. A Hármas-Körös Kákafoki- holtága mentén elhelyezkedő gyönyörű község. A 44-es főút szeli ketté.   

Kapcsolat

Turna Éva Katalin

Irodavezető

Ossza meg a hirdetést:
FacebookGplusTwitter