Nyitólap Hirdetésfeladás Kapcsolat
Eladó Családi ház, Balatonboglár
#209002013
199.99 millió Ft
Alapterület 255 m2,  795 m2-es telken
Szobák száma 4 szoba
Építési mód Tégla
Állapot Kiváló
Emelet nincs megadva

További paraméterek

  • Kertkapcsolatos
  • Zöldövezeti
  • Kilátás: Kertre néző
  • Fűtés: Vegyes tüzelés
  • Szintek száma: 2
  • Komfort: Dupla komfort
  • Internet: Szélessávú (>10Mbps)
  • Akadálymentesítés: Nem akadálymentesített

Részletes leírás

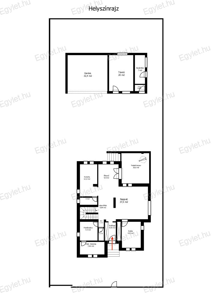
Nappali + 3 hálószobás makulátlan mediterrán ház Balatonbogláron

A Balaton déli partján, Balatonboglár csendes aszfaltozott utcájában, mediterrán stílusban 2017-ben épített gyönyörű, makulátlan 2 szintes családi ház igényes új tulajdonosát várja. A szépen rendezett környék adottságai kiválóak, az utcában szinte valamennyi ház 2010 után épült. A közelben minden megtalálható, ami a mindennapi életvitelhez szükséges (élelmiszer üzletek, hentesbolt, háztartási bolt, Tesco, iskola stb.). A Balaton és az M7 autópálya is mindössze 1,5 km távolságra érhető el. A számos extrával felvértezett 255m2 összterületű ingatlan kialakítása reprezentatív, minden részletében átgondolt, kifejezetten igényes kivitelezésű. A 795 m2 összközműves, parkosított, térkövezett, rendezett telken a lakóház mellett két autó kényelmes beállását biztosító, elektromos garázskapuval rendelkező garázs, egy tároló és egy kazánház található. A melléképület részben alápincézett, melyben kényelmes közösségi tér került kialakításra a szükséges funkciók biztosítása mellett (különálló WC, önálló kandalló, mosogatós konyhapult). Az intim kertben lett felépítve egy fedett grillterasz, kemencével, grillsütővel, bográcstartóval. A kerti növények locsolása automata öntözőrendszerrel biztosított. A kapu elektromos motorral működik, az ingatlan riasztórendszerrel és kamerarendszerrel is felszerelt. A háztartási víz megfelelő keménységét központi vízlágyító biztosítja. A lakóház elosztása: a földszinten a nappali és étkező egy légtérben, konyha, fürdőszoba, háztartási helyiség, WC, hálószoba, előtér és egy hatalmas fedett terasz. Az emeleten: két hálószoba, fürdőszoba WC-vel, valamint egy kisebb nappali. A szinteket elegáns, portugál mészkővel burkolt lépcsőház köti össze. A ház fűtését a típusában legmodernebb ún. faelgázosító kazán látja el, de alternatív megoldásnak gázkazán kiépítése is folyamatban van. A hőleadás radiátorokkal biztosított. További fűtési alternatívát jelenthetnek a nappaliban kialakított igényes kandalló, továbbá a ház hűtését biztosító split klíma berendezések is. A ház rezsikvóta alatti hőenergia felhasználását többek között a magas minőségű több cellás nyílászárók, valamint a 10 cm grafitos homlokzati szigetelés optimalizálja. Az ingatlan állandó lakhatásra és nyaralónak egyaránt ideális választás. Mindent összevetve, ez az igazán „beleszeretős”, nívós ház igazi otthont nyújt minden korosztálynak, akinek fontos a csend, a rendezett, nyugodt, biztonságos környezet, és fontosak a jószomszédi kapcsolatok. A hirdetéshez csatolt fotók, 3D séta, illetve videó megtekintését követően a felmerülő kérdések kapcsán felkészülten várom hívását a hét minden napján.

Kapcsolat

Tóth Róbert

Irodavezető

Ossza meg a hirdetést:
FacebookGplusTwitter