Nyitólap Hirdetésfeladás Kapcsolat
Eladó Téglalakás, Szombathely, Belváros
#706000336
39.5 millió Ft
Alapterület 45 m2
Szobák száma 2 szoba
Építési mód Tégla
Állapot Új építésű
Emelet 1. emelet

További paraméterek

  • Jó közlekedéssel
  • Zöldövezeti
  • Kilátás: Utcára
  • Fűtés: Padlófűtés
  • Szintek száma: 1

Részletes leírás

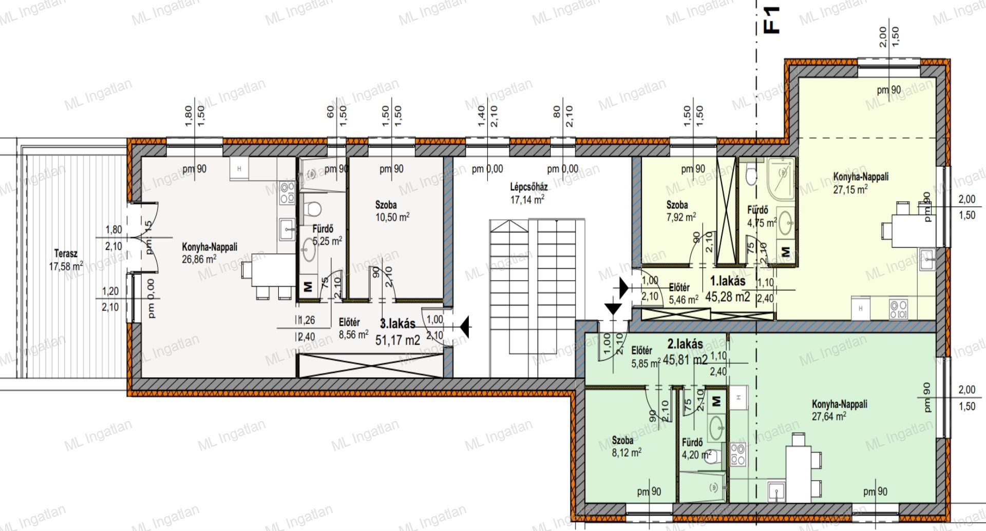
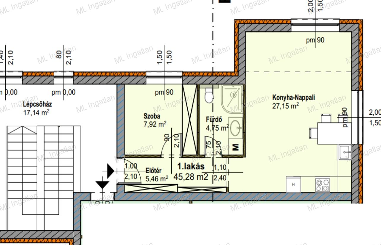
Szombathelyen, új építésű 45 m2 lakás a Ferro Parkban eladó!

Új lakópark Szombathelyen: FERRO PARK.

Utolsó kis méretű lakások még elérhetők!!

Lakás méret: 45,28 m2 

Garázs még vásárolható: 8 millió forint

Az építés éve 2026-ban lesz. Átadás 2027. nyár

Szombathely belvárosának határai folyamatason tolódnak ki. Új lakóparkot építünk közel a Fő térhez. amelynek lakásai garantáltan értékálló otthonok és jövedelmező befektetések lesznek a leendő tulajdonosoknak.
Fedezze fel a FERRO PARK, épületeinek lakásait!

Befektetési és hitelezési szaktanácsadásban is segítem az Ön döntését!
A környékről:
Szombathely belvárosának vonzásában, a Jáki ut elején, a FERRO Park lakónegyed részeként épül a legújabb, épületünk modern beruházása üzletekkel és lakásokkal.
Az épületről:
A három épületben Összesen 33 darab, teljesen újépítésű lakás lesz a beruházás része! Kitűnő választás lehet Önnek: ha otthonát alakítja ki benne vagy, ha befektetésként tekint rá.
Az épület kettő szintes lesz. A földszinten garázsok lesznek.
 
A lakás  dél-nyugat  tájolású. Fűtése központi  padlófűtés lesz lakásonként szabályozható egyedi mérőegységgel felszerelve.

 

A műszaki tartalomról:
Téglaszerkezetű falazat, külső 15 cm-es hőszigeteléssel.
Fokozottan hőszigetelt, háromrétegű műanyag ablakok.
A bejárati ajtó fehér színű, 5 ponton záródó biztonsági zárral.
A beltéri ajtók egyedileg lesznek kiválasztva.
A fűtése hőszivattyúval, a lakásokban egyedi hőmennyiség szabályozóval, padlófűtéssel.
A melegvíz-ellátást eco villanybojler biztosítja. 
A padlóburkolatot, a csempét, a járólapot és a szanitereket a vásárló választja ki.
A lakás konyhabútort nem tartalmaz.
Az ingatlanhoz saját, kizárólagos használatú és tulajdonú, lezárható parkoló tartozik.
Miért válassza ezt az ingatlant?
Egyedi fizetési ütemezést határozunk meg az ügyféllel!
A lakások 30 % önrésszel már lefoglalhatóak.

A kivitelezés során az építő kifejezetten figyel a magas minőségre, a magas műszaki tartalomra, illetve a pontos kivitelezésre.
Kapcsolat:
Ha felkeltette érdeklődését az ingatlan, akkor kérem keressen, hogy a részletekről is beszélhessek Önnel.
Akár csak befektetné a pénzét vagy szeretne költözni, most egy igazán értékes ingatlanhoz juthat kedvező áron!
Garantáljuk, hogy a teljes lakóparki projekt megvalósulása során az Ön lakása értékálló, jó befektetés lesz.
Kérem hívjon, hogy további részletekről tájékoztathassam vagy keressen szaktanácsadásért.

Simon Zsolt


06209504680

[email protected]

Kapcsolat

Simon Zsolt

Irodavezető

+36 20 950-4680
[email protected]
ML Ingatlan

Ossza meg a hirdetést:
FacebookGplusTwitter