|
129.9 millió Ft
|
|
| Alapterület | 95 m2, 586 m2-es telken |
| Szobák száma | 1 szoba + 4 félszoba |
| Építési mód | Könnyűszerkezetes |
| Állapot | Újszerű |
| Emelet | nincs megadva |
További paraméterek
- Kilátás: Udvari
- Fűtés: Kondenzációs kazán
- Bútorozottság: Részben bútorozott
- Komfort: Dupla komfort
Részletes leírás
Modern, energiatakarékos 4 hálószobás családi ház eladó Ebesen – télikerttel, napelemmel és garázzsal
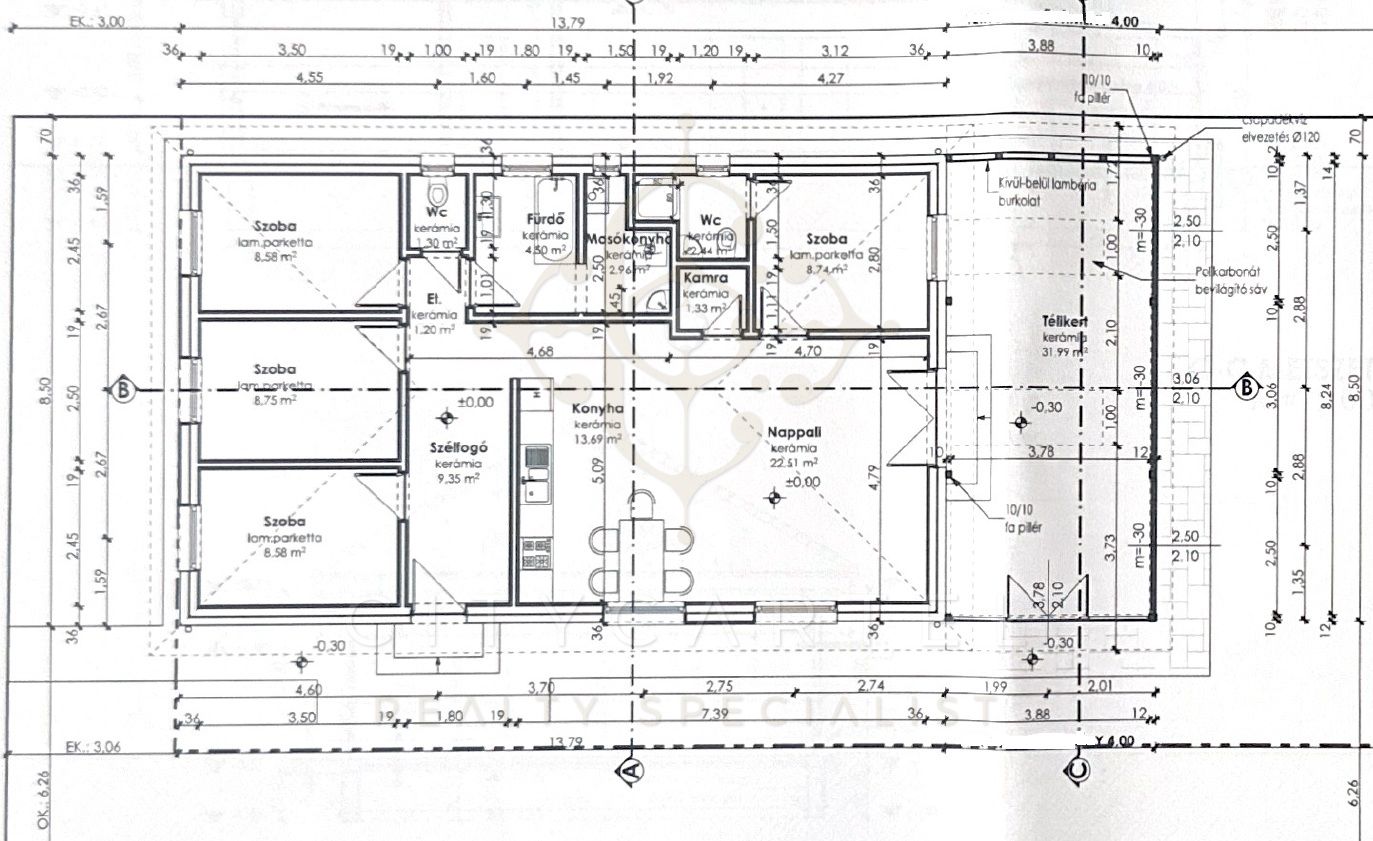
Ebes északi részén, új építésű családi házas övezetben eladó egy 2020-ban épült, 95 m²-es, könnyűszerkezetes, favázas családi ház, amelyhez 31 m²-es télikert és egy 30 m²-es önálló garázs is tartozik.
A telek mérete 586 m², szépen parkosított, rendezett udvarral és további két gépkocsi-beállási lehetőséggel.
Főbb jellemzők és műszaki adatok
-95 m² lakótér + 31 m² télikert + 30 m² garázs
-4 db külön nyíló hálószoba, ebből az egyik saját fürdőszobával (szülői lakrész)
-További fürdőkádas fürdőszoba + külön vendég-WC kézmosóval
-Amerikai konyhás nappali közvetlen kijárattal a télikertbe, külön nyíló kamrával
-Kondenzációs gázkazán padlófűtéssel és a szobákban radiátorokkal
-3 db hűtő-fűtő klíma
-5,1 kW-os napelemrendszer (éves szaldó elszámolással, ezáltal 0 Ft-os villanyszámlával)
-Háromrétegű műanyag homlokzati nyílászárók, aluredőnyök, szúnyoghálók
-Elektromos nagykapu és szekcionált, motoros garázskapu
-Rendezett, parkosított udvar
Szerkezet és minőség
A ház beton alapra, KVH ragasztott, hossztoldott fenyő vázszerkezettel épült.
A falszerkezetben 15 cm ISOVER Akuplat hőszigetelés és további 10 cm EPS homlokzati szigetelés található, a tető betoncseréppel fedett.
A kivitelező a Könnyűszerkezetes Házépítők Egyesületének (Kö.H.E.) tagja, több mint 30 éves szakmai tapasztalattal, ami garancia a minőségi és szakszerű építésre.
Elhelyezkedés és közlekedés
Az ingatlan Ebes északi részén fekszik, rendezett, új családi házas környezetben.
A 4-es számú főút és az M35 autópálya néhány percre elérhető, így Debrecen, a környező ipari parkok és gyárak is gyorsan megközelíthetők.
Kinek ajánljuk?
Ez az ingatlan tökéletes választás nagycsaládosoknak, illetve azoknak, akik Debrecenből kiköltözve egy nyugodt, biztonságos, zöld környezetben szeretnének élni, de fontos számukra a jó megközelíthetőség és az alacsony rezsi.
A ház megkímélt, újszerű állapotban van, megbeszélés alapján rövid időn belül költözhető!
Tekintsd meg személyesen ezt a modern, télikertes otthont – garantáltan beleszeretsz majd!
