Eladó Családi ház, Budapest, XVI. kerület
#390326
|
239 millió Ft
|
|
| Alapterület | 123 m2, 588 m2-es telken |
| Szobák száma | 3 szoba |
| Építési mód | nincs megadva |
| Állapot | Új építésű |
| Emelet | nincs megadva |
További paraméterek
- Kilátás: Kertre néző
- Komfort: Összkomfort
Részletes leírás
Új építésű családi ház eladó Sashalom kedvelt részén, a Gárda utca 60. szám alatt!
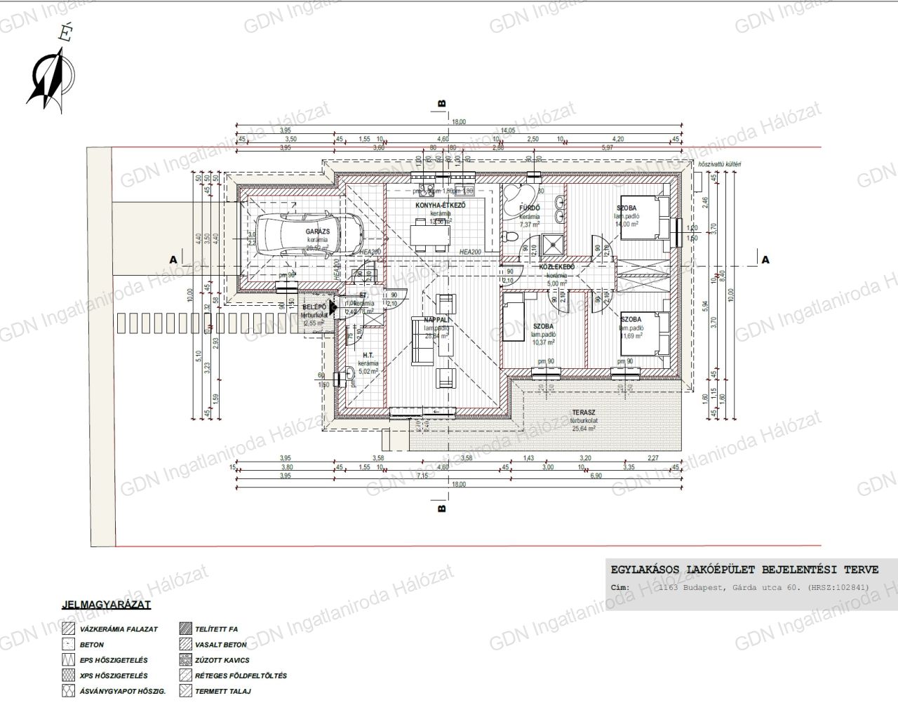
Budapest XVI. kerületében, egy 588 m²-es, külön helyrajzi számon nyilvántartott telken kínáljuk megvételre ezt a modern kivitelezésű, nettó 98,63 m²-es lakótérrel, 20,52 m²-es garázzsal és 25,64 m²-es terasszal rendelkező új építésű családi házat.
Az ingatlan 30-as Porotherm falazóelemből, fa födémszerkezettel épül, a homlokzaton 15 cm grafitos EPS, a padlóban 12 cm lépésálló, a vízszintes födémen pedig 30 cm kőzetgyapot szigetelés készül. A külső nyílászárók 3 rétegű üvegezéssel, kívülről fóliázva, elektromos alumínium redőnnyel és szúnyoghálóval felszerelve kerülnek beépítésre.
A fűtésről és a használati melegvízről 12 kW-os split rendszerű hőszivattyú gondoskodik 200 literes HMV tartállyal, a hűtést pedig 4 darab fan-coil biztosítja. A villamos hálózat 3×16 A, továbbá H-tarifa 3×16 A is kiépítésre kerül. Az ingatlan összesen 130 darab választható elektromos kiállással készül. A felszereltség része az elektromos kapu, az elektromos garázsajtó, a riasztórendszer, valamint a kamerarendszer előkészítése is.
A garázs igény szerint akár szobává alakítható, vagy a tartószerkezet lehetőségei miatt e-gerendás betonfödém kiépítésével akár második szint is kialakítható.
Az udvaron térkőből autóbeálló, járda, valamint az ingatlan körül is teljes térkövezett járda készül.
Választható műszaki tartalom
-Beltéri ajtók: 100.000 Ft/db-ig
-Hidegburkolatok: 10.000 Ft/m²-ig
-Melegburkolatok: 8.000 Ft/m²-ig
-Garázs burkolata: 5.000 Ft/m²-ig
-Fürdőkád: 70.000 Ft-ig
-Épített zuhany
Ez a ház ideális választás mindazoknak, akik modern, energiatakarékos otthont keresnek nyugodt környezetben.
A kivitelező számos referenciával rendelkezik, melyeket komoly érdeklődés esetén szívesen megmutatunk.
INGYENES hitel tanácsadás, CSOK Plusz ügyintézés!
BANKFÜGGETLEN hitelcentrumunk az összes elérhető bank és hitelintézet ajánlatát versenyezteti az Ön kedvéért, ráadásul DÍJMENTESEN.
- Egyedi, bankfiókban nem elérhető kamat- és díjkedvezmények
- Hitelképesség vizsgálat
- Idő, energia és pénz megtakarítás
- Teljes hivatali ügyintézés
Amennyiben hirdetésem felkeltette az érdeklődését vagy egyéb információra van szüksége hívjon bizalommal!

